Rare : une rénovation d'un bâtiment historique de grand standing. Pierre de taille, grandes surfaces vitrées, Jardin paysager. Livrée et habitable de suite.
En plein centre ville, à 5-10 min à pied du Port, de la Gare, du Centre des Congrès, des Galeries Lafayette et tous commerces.
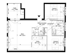
Spacieux T3 de 68m2 sur cour, au calme, comprenant : - séjour 33m2 et loggia exposés sud ouest - deux chambres 11,5-10,8m2, - salle d'eau douche à l'italienne, wc séparés, entrée - parking et cave inclus.
Nous Consulter.
Honoraires à la charge du vendeur. Classe énergie C, Classe climat C Montant estimé des dépenses annuelles d'énergie pour un usage standard : entre 520.00 et 760.00 sur les années 2021, 2022 et 2023 (abonnements compris). Les informations sur les risques auxquels ce bien est exposé sont disponibles sur le site Géorisques : georisques.gouv.fr.
Votre conseiller MON BIEN A LA MER : Gérant - .fr MON BIEN A LA MER Carte T CPI 2201 2018 000 025 040 RCP ACM IARD B1 7025278
68 m²
6 206 €
34 m²
3
2
1
1 (séparé)
1 sur 3
Oui
Oui
1
1
Consommations énergétiques
Logement économe
69
Logement énergivore (kWhEP/m2/an)
Émissions de gaz à effet de serre
Faible émission de GES
14
Forte émission de GES(kgeqCO2/m2/an)
Contact mon bien à la mer
Contacter gratuitement à l'aide du formulaire ci-dessous.