Nouvelle résidence de standing en front de Mer, à 400m du centre ville/port, 10 min en voiture de l'embarcadère BREHAT/Pointe de l'ARCOUEST.
Normes RE2020, Frais de notaire réduits, Livraison fin 2026. Carrelage au sol Villeroy & Boch, Parquet stratifié dans les chambres, Grand bac à douche extraplat avec faïence toute hauteur Villeroy & Boch, volets roulants électriques toutes fenêtres, chauffage électrique, résidence sécurisée.
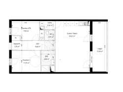
Spacieux T3 dernier étage front de Mer. Ce T3 offre une belle vue mer sur son séjour de 33m2 et sa loggia de 13,24m2 (2m de profondeur). Deux chambres (11,75-9,78m2) côté cour. Wc séparé, salle d'eau, cellier, placards, un parking.
Nous Consulter
Honoraires à la charge du vendeur. Non soumis au DPE. Les informations sur les risques auxquels ce bien est exposé sont disponibles sur le site Géorisques : georisques.gouv.fr.
Votre conseiller MON BIEN A LA MER : Gérant - .fr MON BIEN A LA MER Carte T CPI 2201 2018 000 025 040 RCP ACM IARD B1 7025278
72 m²
6 218 €
33 m²
3
2
1
1 (séparé)
1 sur 1
1
1
Oui
Contact mon bien à la mer
Contacter gratuitement à l'aide du formulaire ci-dessous.