L'agence 'MON BIEN A LA MER', spécialiste de l'immobilier neuf sur les côtes Bretonnes, vous présente :
Très rare : résidence neuve en front de mer en cours d'achèvement à PORNICHET. Seulement 23 appartements de grand standing. Situation exceptionnelle : sur la place centrale, marché plage commerces à pied. Livraison printemps 2026, frais de notaire réduits.
Ascenseur, parkings sous sol & Boxs, local vélo, local planches surf, boites aux lettres connectés, plancher chauffant/rafraichissant, grandes surfaces vitrées toute hauteur, prises individuelles pour voitures électriques, pompe à chaleur, domotique : tout a été pensé pour votre confort.
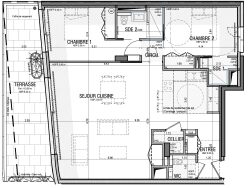
Cet appartement de 93,6m2 est situé au 2è étage, plein front de mer, exposé sud-ouest. Le séjour de 50,8m2+cellier et la suite parentale s'ouvrent sur une superbe terrasse de 23,3m2. La deuxième chambre possède aussi sa propre salle d'eau. Placards dans chaque chambre. Dans l'entrée : wc séparés et placards. Parking sous sol inclus.
Nous Consulter pour visite du chantier.
Honoraires à la charge du vendeur. Non soumis au DPE. Les informations sur les risques auxquels ce bien est exposé sont disponibles sur le site Géorisques : georisques.gouv.fr.
Votre conseiller MON BIEN A LA MER : Gérant - .fr MON BIEN A LA MER Carte T CPI 2201 2018 000 025 040 RCP ACM IARD B1 7025278
93.6 m²
15 972 €
51 m²
3
2
2
2 (séparés)
2 sur 5
Sud
Oui
1
1
Oui
Contact mon bien à la mer
Contacter gratuitement à l'aide du formulaire ci-dessous.