L'agence 'MON BIEN A LA MER', spécialiste de l'immobilier neuf sur les côtes Bretonnes, vous présente :
Superbe emplacement pour ce projet de construction VEFA (fin 2026). Sur le Port de PORNIC, à 5 min à pied des du Port et des Commerces. 5 min en vélo de la Plage. Résidence sécurisée dans un cadre verdoyant, ascenseur, Parquet stratifié, carrelage PORCELANOSA, wc suspendus, chauffage électrique, places de parking en sous sol pouvant être équipées de bornes électriques,.
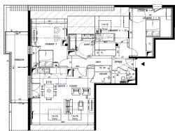
Superbe T4 au 3è et dernier étage comprenant : - Surface carrez 89,18m2 + surface utile - séjour 28,47m2, dégagement et entrée 11m2, cellier 2m2, - 3 chambres 16,58-9,67-14,48m2 au sol (avec placards) - salle de bains, baignoire, meuble vasque, sèche serviette, - wc suspendus séparés - très belle terrasse de 13m2 - 4 parkings inclus.
Nous Consulter.
Honoraires à la charge du vendeur. Non soumis au DPE. Les informations sur les risques auxquels ce bien est exposé sont disponibles sur le site Géorisques : georisques.gouv.fr.
Votre conseiller MON BIEN A LA MER : Gérant - .fr MON BIEN A LA MER Carte T CPI 2201 2018 000 025 040 RCP ACM IARD B1 7025278
89 m²
4 888 €
28 m²
4
3
1
1 (séparé)
3 sur 3
Oui
4
1
Oui
Contact mon bien à la mer
Contacter gratuitement à l'aide du formulaire ci-dessous.