MON BIEN A LA MER, spécialiste de l'immobilier neuf en BRETAGNE, vous présente :
TRAVAUX EN COURS - Petite résidence de standing neuve en livraison pour début 2027. 21 lots. Calme et nature, commerces et collège à pied. Ascenseur, volets roulants électriques, wc suspendus,. Normes RE2020. Frais de notaire réduits.
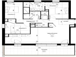
Superbe T4 au 4è et dernier étage exposé sud ouest comprenant : - séjour 30,7m2 - Chambres 11-10,35m2 - salle d'eau, cellier, wc séparé - suite parentale / salle d'eau wc 17m2 - placards - double parking inclus.
Nous Consulter
Honoraires à la charge du vendeur. Non soumis au DPE. Les informations sur les risques auxquels ce bien est exposé sont disponibles sur le site Géorisques : georisques.gouv.fr.
Votre conseiller MON BIEN A LA MER : Gérant - .fr MON BIEN A LA MER Carte T CPI 2201 2018 000 025 040 RCP ACM IARD B1 7025278
84.67 m²
4 334 €
31 m²
4
3
2
2 (séparés)
4 sur 4
Oui
3
1
Oui
Contact mon bien à la mer
Contacter gratuitement à l'aide du formulaire ci-dessous.