MON BIEN A LA MER, Spécialiste de l'immobilier neuf en Bord de Mer vous présente :
Superbe emplacement pour cette petite résidence à BENERVILLE SUR MER 5 min à pied de la plage des Ammonites, au calme. 6 min en voiture de la gare de DEAUVILLE.
Cette résidence à taille humaine de 20 lots vous offre de belles prestations et s'insère harmonieusement dans son environnement, à deux pas de l'hippodrome de CLAIREFONTAINE. Ascenseur. Frais de notaire réduits. Livraison début 2028.
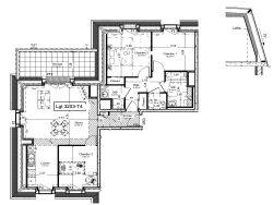
Cet appartement T4 de 86m2 habitables est situé au dernier étage. Le séjour de 33m2 offre une exposition et terrasse au sud ouest ; traversant, il se prolonge sur un coin cuisine. 3 Chambres de 13-10-10m2 le complètent. Ainsi qu'une salle d'eau, une salle de bains, wc suspendus séparés, placards. Box inclus.
Nous consulter.
Honoraires à la charge du vendeur. Non soumis au DPE. Les informations sur les risques auxquels ce bien est exposé sont disponibles sur le site Géorisques : georisques.gouv.fr.
Votre conseiller MON BIEN A LA MER : Gérant - .fr MON BIEN A LA MER Carte T CPI 2201 2018 000 025 040 RCP ACM IARD B1 7025278
86.53 m²
7 522 €
33 m²
4
3
1
1
1 (séparé)
2 sur 2
Oui
1
1
Contact mon bien à la mer
Contacter gratuitement à l'aide du formulaire ci-dessous.