Superbe T4 double expo/terrasse 40m2, Plage à pied.
Saint-Malo 35400
0
Honoraires à la charge du vendeur.
L'agence 'MON BIEN A LA MER', spécialiste de l'immobilier neuf sur les côtes Bretonnes, vous présente :
Nouvelle Résidence Coeur de ville SAINT MALO - Emplacement recherché : Rue de Tourville, à pied : 3 min marché Rocabey, 10 min plage du Sillon, 6 min Gare TGV. Livraison mi 2028, Ascenseur, standing, frais de notaire réduits.
Résidence RE2020, ballon thermodynamique, chauffage individuel électrique, volets roulants électriques, wc suspendus, parquet stratifié, local vélo, et le confort de tout faire à pied dans un quartier recherché.
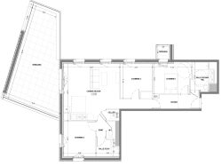
Superbe T4 4è étage avec terrasse 39,92m2, séjour double expo Sud et Ouest : - Séjour 32,68m2 - 3 Chambres 11,52-11,06-9,95m2 - 2 wcs, salle d'eau, salle de bains, cellier, placard. Double parking inclus.
Nous Consulter
Honoraires à la charge du vendeur. Non soumis au DPE. Les informations sur les risques auxquels ce bien est exposé sont disponibles sur le site Géorisques : georisques.gouv.fr.
Votre conseiller MON BIEN A LA MER : Gérant - .fr MON BIEN A LA MER Carte T CPI 2201 2018 000 025 040 RCP ACM IARD B1 7025278
85.96 m²
7 248 €
32 m²
4
3
1
1
2 (séparés)
4 sur 5
Oui
2
1
Contact mon bien à la mer
Contacter gratuitement à l'aide du formulaire ci-dessous.