Sur la plage, 6 pièces de standing vue mer imprenable
La Londe-les-Maures 83250
0
Honoraires à la charge du vendeur.
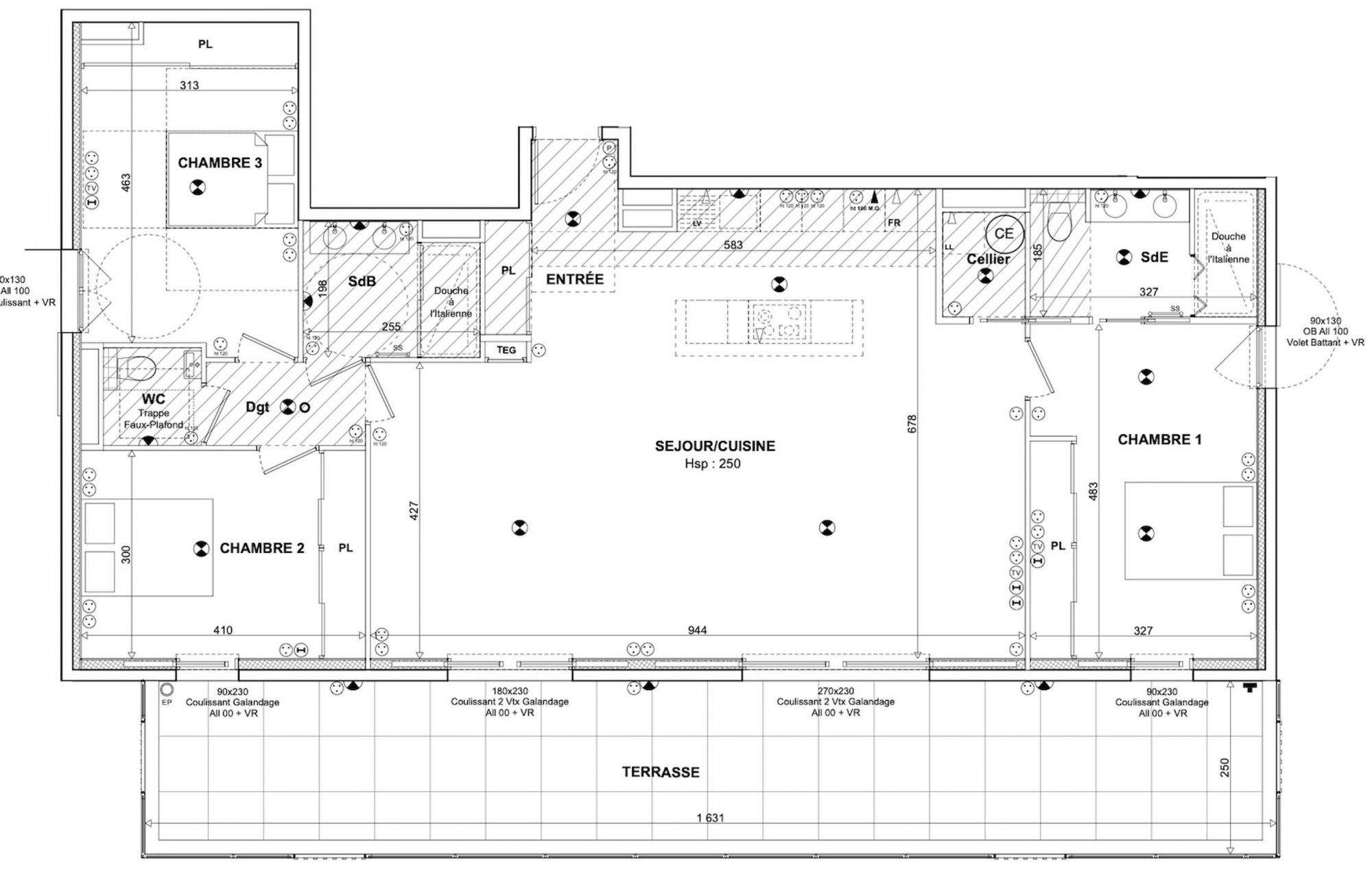
Bien d'exception situé en première ligne au bord de mer sur la belle plage Miramar à La Londe les Maures avec une vue imprenable sur la mer et les Iles (Porquerolles et Port Cros). D'une superficie de 146 m2 habitables ( 130,65 m2 loi carrez ), vous serez séduits par le séjour de 43 m2 avec cuisine aménagée équipée ouvrant sur une vaste terrasse de 40 m2 avec vue mer et la suite parentale avec salle d'eau. Cet appartement en duplex dispose également de 3 chambres, 2 salles d'eau et 1 salle de bains, 4 wc, une buanderie, un dressing, un grand garage et une place de parking. Prestations haut de gamme, volets roulants électriques, climatisation dans toutes les pièces. Les informations sur les risques auxquels ce bien est exposé sont disponibles sur le site Géorisques : www.georisques.gouv.fr Cette annonce vous est proposée par Mme. Régine MARIANI - - NoRSAC: 389343765, Enregistré à de TOULON
141.94 m²
7 010 €
42 m²
6
4
1
2
4
263 € / mois
2000
Sud
Oui
1
Oui
Oui
1
Oui
Oui
Oui (3 lots)
Consommations énergétiques
Logement économe
92
Logement énergivore (kWhEP/m2/an)
Émissions de gaz à effet de serre
Faible émission de GES
2
Forte émission de GES(kgeqCO2/m2/an)
Contact MARIANI
Contacter gratuitement à l'aide du formulaire ci-dessous.