Vous souhaitez investir dans l'immobilier locatif sans avoir à vous soucier de la gestion ?
Ce bien en Résidence Etudiante destiné uniquement à l'investissement, vous permet de profiter de revenus locatifs peu fiscalisés tout en vous constituant un patrimoine immobilier.
- 5.1% de rendement prévisionnel brut
- 3068.53 € HT de loyer annuel
- 325.00 € de charges de copropriétés annuelles
- 272.00 € de taxe foncière annuelle
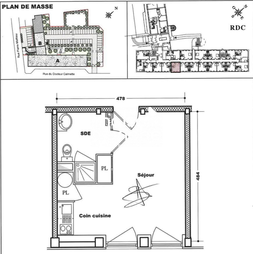
Le bien à vendre est un T1 d'une surface de 19.78 m², équipé et meublé, situé au niveau R+3 de la résidence Lucien Jonas à AULNOY LEZ VALENCIENNES et exploité par la société UXCO.
La résidence Lucien Jonas bénéficie d'un atout exceptionnel : sa localisation au c?ur même du campus du Mont Houy, qui regroupe les principaux pôles d'enseignement supérieur de Valenciennes et d'Aulnoy-lez-Valenciennes.
On y retrouve l'Université Polytechnique Hauts-de-France, qui accueille plus de 14 500 étudiants au total, dont plus de 7 000 concentrés uniquement sur ce site. C'est ici que se situent l'INSA Hauts-de-France ? près de 5 000 étudiants, dont plus de 1 300 élèves-ingénieurs ? et l'IUT de Valenciennes, qui compte environ 2 100 étudiants.
Autrement dit, la résidence se trouve littéralement au pied d'un des plus grands bassins étudiants de la région, avec une demande locative captive et constante.
Pour un bailleur, c'est une garantie de visibilité et de pérennité : la proximité immédiate des amphis, des écoles et du tramway T1 réduit la vacance locative et renforce l'attractivité du bien.
Investir à Lucien Jonas, c'est se positionner au c?ur de la vie étudiante, sur un marché solide et durable.
Ce bien en location sous bail commercial vous permet de bénéficier de nombreux avantages :
- Des loyers perçus, que votre bien soit occupé ou non.
- Des revenus locatifs soumis à la fiscalité avantageuse de la LMNP
- Des charges réduites
- Une durée de bail qui sécurise vos loyers dans la durée
Création Développement Patrimoine vous accompagne depuis plus de 20 ans pour vous aider à concrétiser vos projets d'investissement en immobilier géré sous bail commercial.
N'hésitez pas à nous contacter pour découvrir toutes nos opportunités en immobilier d'investissement : LMNP (Location Meublée Non Professionnelle) & LMP en résidences services (résidences étudiante, senior, affaires, tourisme, EHPAD ou médicalisée).
Consommation énergie primaire (KWh/m2/an) : 208
Consommation énergie finale : Non communiquée
19 m²
3 184 €
1
3
Sud
Contact Création et Développement de Patrimoine
Contacter gratuitement à l'aide du formulaire ci-dessous.