Résidence SPACIO: Appartement T1 équipé dans une résidence-services pour étudiants de moins de 30ans
Résidence neuve,
16 BD SERGENT TRIAIRE
Les loyers comprennent les provisions pour charges (eau et électricité)
La WIFI est également incluse dans le loyer.
Bénéficiez de services adaptés : Laverie, Salle de sport, salle commune.
Accès à la résidence sécurisé par badge.
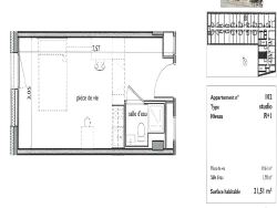
Logement composé d'une pièce avec coin cuisine équipée et d'une salle de bain. Bien aménagé et fonctionnel, il disposera d'un bureau, d'une table et d'un lit.
Pas de frais d'agence.
Pas de frais de dossier
REF YELLOME GROUPE PROMOLOGIS : REGI-SPACIO-EXCLUSIF
Les informations sur les risques auxquels ce bien est exposé sont disponibles sur le site Géorisques : www. georisques. gouv. fr
21 m²
1
1
1
Oui
Contact Yellome logements locatifs étudiants
Contacter gratuitement à l'aide du formulaire ci-dessous.