T1 lumineux et bien placé dans résidence sécurisée avec pisc
Petit Bourg 97170
0
Honoraires à la charge de l'acquéreur (Prix hors honoraires : 100000 euros).
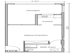
Exclusivité HOP! IMMOBILIER. Découvrez ce lumineux T1 de 37,40 m2 habitables, terrasse comprise, idéalement situé à 10 minutes de Jarry dans un secteur calme de Petit-Bourg. L'appartement se trouve au premier et dernier étage d'une résidence de 2011 comprenant 60 lots répartis en 4 bâtiments d'un étage maximum. Une place de parking privative est à votre disposition. Les espaces verts de la résidence sont particulièrement soignés et offrent de très beaux points de vue notamment lorsque l'on profite de la belle piscine pour un moment de détente idéal. L'appartement se compose d'un séjour/chambre donnant sur la cuisine ouverte aménagée et partiellement équipée. Il y a des placards, une belle salle d'eau avec wc et un dégagement. La terrasse qui offre une vue piscine vous permet de profiter de moments agréables. La résidence est raccordée à la fibre. Les charges de copropriété s'élèvent à 213 euros par trimestre et la taxe foncière pour l'année 2024 de 833 euros. L'appartement est loué à l'année et il présente une excellente opportunité d'investissement : date début de bail le 1er juillet 2022. Je reste à votre disposition si vous désirez des informations complémentaires ou pour organiser une visite au 0690293806. Cette présente annonce a été rédigée sous la responsabilité éditoriale de Sophie THIBAUD agissant sous le statut d'agent commercial immatriculé au RSAC DE POINTE A PITRE n° 487 666 810 auprès de la SAS FCI Patrimoine, HOP IMMOBILIER, au capital de 37 000 euros, 27 avenue de la Marne à MERIGNAC 33700, RCS BORDEAUX n° 500 130 059, Carte professionnelle Transactions sur immeubles et fonds de commerce n° CPI 3301 2017 000 017 791 CCI BORDEAUX. 'Les informations sur les risques auxquels ce bien est exposé sont disponibles sur le site Géorisques : www.georisques.gouv.fr' Nombre de lots dans la copropriété : 60 Surface carrez : 25 m2 + 12 m2 de terrasse Montant des charges annuelles prévisionnelles : 852 euros Référence annonce : 679 Taxes foncières : 833 euros Date de réalisation du diagnostic : 02/2025
Honoraires inclus de 7.5% TTC à la charge de l'acquéreur. Prix hors honoraires 100 000 . Dans une copropriété de 60 lots. Quote-part moyenne du budget prévisionnel 1 300 /an. Aucune procédure n'est en cours. Classe énergie D, Classe climat D Montant estimé des dépenses annuelles d'énergie pour un usage standard : entre 900.00 et 1100.00 sur les années 2021, 2022 et 2023 (abonnements compris). Les informations sur les risques auxquels ce bien est exposé sont disponibles sur le site Géorisques : georisques.gouv.fr.