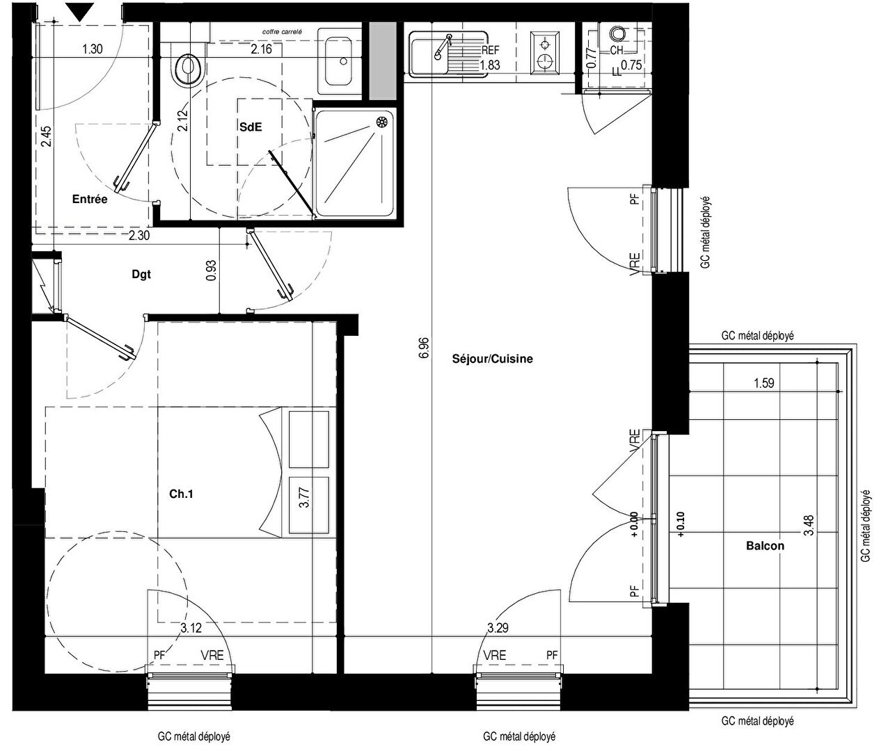
Dans une résidence récente et sécurisée, ce T1 de 32 m² offre confort moderne et localisation idéale. À deux pas du centre-ville, il permet un accès rapide au métro, bus et commerces. L'immeuble propose un espace commun polyvalent ainsi qu'une laverie collective.
L'appartement comprend une cuisine ouverte équipée, une salle d'eau avec douche italienne et WC intégrés, du parquet, du double vitrage, la fibre/ADSL, des volets roulants, digicode et interphone. Une cave complète le tout.
Avec son agencement optimisé et ses prestations de qualité, ce bien représente une belle opportunité dans un quartier recherché de Rennes, parfait pour un premier achat ou un investissement locatif.
Le bien comprend 1 lot, et il est situé dans une copropriété de 35 lots (les charges courantes annuelles moyennes de copropriété sont de 2024 € et le syndicat des copropriétaires ne fait pas l'objet d'une procédure citée à l'article L. 721-1 du code de la construction et de l'habitation).
Les informations sur les risques auxquels ce bien est exposé sont disponibles sur le site Géorisques : www.georisques.gouv.fr
Prix de vente : 205 000 €
Honoraires charge vendeur
Contactez votre consultant megAgence : Kyllian LEPONT, Tél. : 0785247828, E-mail : kyllian.lepont@megagence.com - EI - Agent commercial immatriculé au RSAC de LAVAL sous le numéro 940 878 770
32 m²
6 406 €
1
1
1
1
1
2016
Oui
Oui
Consommations énergétiques
Logement économe
83
Logement énergivore (kWhEP/m2/an)
Émissions de gaz à effet de serre
Faible émission de GES
14
Forte émission de GES(kgeqCO2/m2/an)
Contact Marc Lelogeais
Contacter gratuitement à l'aide du formulaire ci-dessous.