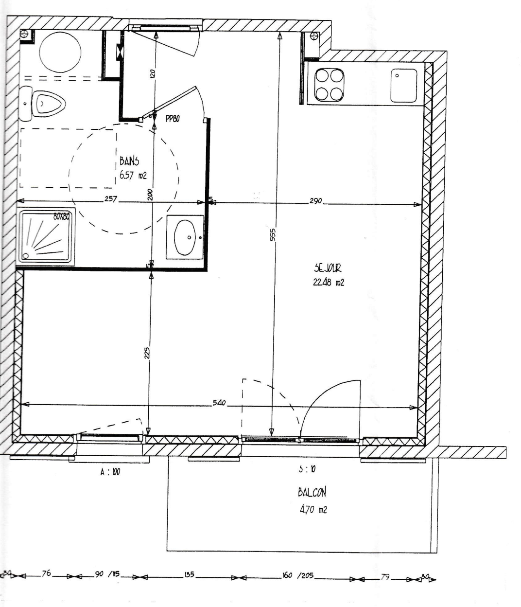
SOUS OFFRE D'ACHAT En exclusivité dans notre agence découvrez cet appartement 2 pièces situé sur la station de la Toussuire ! Cet appartement comprend: une entrée, un coin montagne, une salle de bain avec wc, une chambre avec lit double et un séjour/ salle à manger avec coin cuisine ouvrant sur le balcon. Appartement vendu meublé pour 4 personnes, en annexe un casier à skis et un parking exterieur pour la copropriété. DPE F, 'logement à consommation energétique excessive' Pour plus de renseignements contacter l'agence RAMBAUD Immobilier au 04.79.64.14.16
21.94 m²
4 421 €
2
1
1
1
1985
1
Oui (380 lots)
Consommations énergétiques
Logement économe
510
Logement énergivore (kWhEP/m2/an)
Émissions de gaz à effet de serre
Faible émission de GES
16
Forte émission de GES(kgeqCO2/m2/an)
Contact Agence de SAINT JEAN DE MAURIENNE
Contacter gratuitement à l'aide du formulaire ci-dessous.