Novea Immobilier vous présente cet appartement de 31m2 dans le secteur du 6eme arrondissement à deux pas du métro A Massena (2min à pied), vous trouverez tous les commerces de proximité.
Traversant Est / Ouest, ce bien est situé au premier étage , sans ascenseur d'un immeuble ancien et profite d'aucun vis à vis,
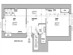
Aujourd'hui, il propose un espace cuisine de 9,85m2 sur cour et un espace de vie de 10,85m2 sur rue en profitant malgré le premier étage d'une vue dégagée ainsi une luminosité agréable.
Il possède naturellement un wc indépendant et une salle de douche de 2m2 ainsi qu'une entrée entre l'espace cuisine et l'espace de vie de plus de 7m2.
Possibilité d'aménagement :
- On peut imaginer déplacer la cuisine au niveau de l'entrée - Créer une chambre à la place de la cuisine - Ainsi créer un vrai T2 avec une chambre sur cour et un bel espace de vie avec cuisine ouverte exposé Ouest.
OU - On peut laisser la cuisine en l'état et installer sa pièce de vie à l'entrée -Considérer la pièce sur rue comme chambre - Ainsi obtenir un vrai T2 également et sans doute moins de travaux.
En plus de ces travaux d'aménagement, il faudra rénover également la salle d'eau pour la remettre à votre goût et envisager de changer les huisseries pour du double vitrage.
DPE F, les charges de copropriété ainsi que la taxe foncière sont très faibles, plusieurs devis travaux ont été réalisés.
Deux caves sont proposées en sous sol.
Je vou laisse revenir vers moi pour plus d'informations et organiser une visite,
Honoraires à la charge du vendeur. Dans une copropriété de 11 lots. Aucune procédure n'est en cours. Logement à consommation énergétique excessive : Classe énergie F, Classe climat C Montant moyen estimé des dépenses annuelles d'énergie pour un usage standard, établi à partir des prix de l'énergie de l'année 2021 : entre 1084.00 et 1467.00 . Les informations sur les risques auxquels ce bien est exposé sont disponibles sur le site Géorisques : georisques.gouv.fr.
Votre conseiller NOVEA Immobilier Lyon 6 : Antoine DUMONT Agent commercial (Entreprise individuelle) RSAC 843180373 RCP GALIAN-SMABTP RCACO-19-011456 Retrouvez l'annonce de l'agence immobilière NOVEA Immobilier Lyon 6 sur : https://www.novea-immobilier.fr/ref/VA14543
31 m²
6 129 €
2
1
1
1 (séparé)
1 sur 5
51.33 € / mois
1900
Est
Ouest
Oui
Oui (11 lots)
Consommations énergétiques
Logement économe
353
Logement énergivore (kWhEP/m2/an)
Émissions de gaz à effet de serre
Faible émission de GES
14
Forte émission de GES(kgeqCO2/m2/an)
Contact Antoine DUMONT
Contacter gratuitement à l'aide du formulaire ci-dessous.