CONSERVATOIRE
Dans une résidence agréable et bien entretenue, venez visiter ce bel appartement de deux pièces principales avec deux balcons au calme en fond de parcelle.
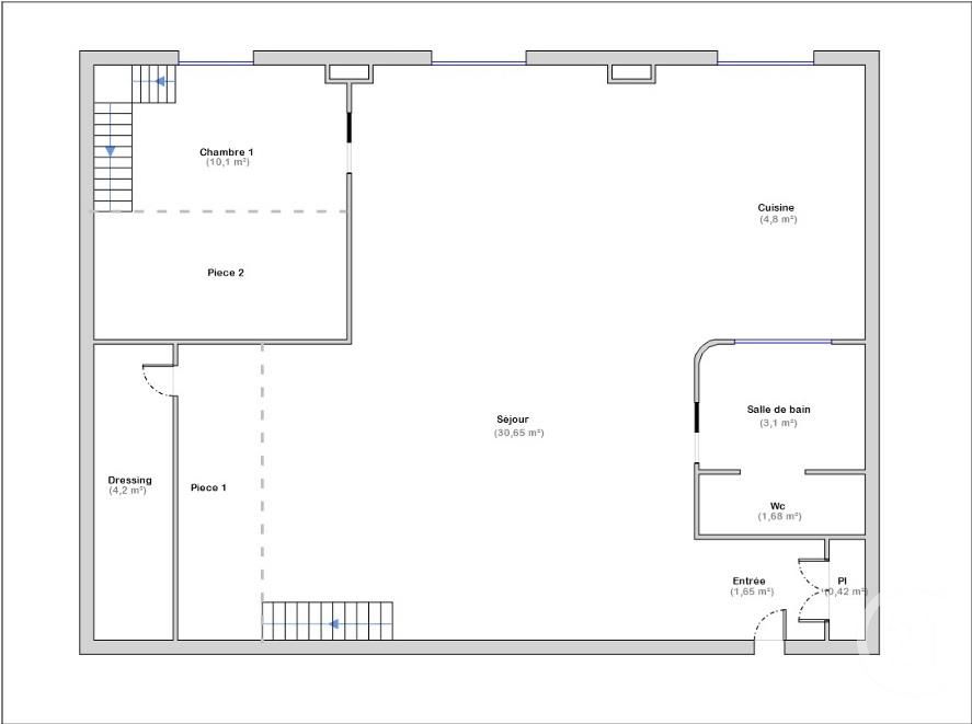
Au 1er étage il se compose de: une entrée, une cuisine indépendante, un beau séjour lumineux donnant sur un balcon, un dégagement avec placard desservant une chambre avec placard intégré et dressing, une salle de bains et un WC séparé.
Sans vis à vis, vous apprécierez la tranquillité de cet appartement.
Une cave et une place de parking en sous-sol complètent le tout !
A toute proximité des transports (T9 au pied de l'immeuble et RER C à 15 min à pieds), des commerces, et de l'autoroute.
53 m²
4 019 €
22 m²
2
1
1
1
1
1982
Oui
Consommations énergétiques
Logement économe
287
Logement énergivore (kWhEP/m2/an)
Émissions de gaz à effet de serre
Faible émission de GES
9
Forte émission de GES(kgeqCO2/m2/an)
Contact ACV
Contacter gratuitement à l'aide du formulaire ci-dessous.