En exclusivité ! Encore un nouveau bien à vendre chez Novéo Immo !
Nous avons plus de 3000 biens en vente en Rhône-Alpes (neufs et anciens). Gagnez du temps, et ne passez pas à côté d'une belle opportunité ! Prenons rdv pour faire avancer votre projet d'acquisition.
RESIDENCE neuve à Vaulx-en-Velin ! Appartement 2P - 42,3m².
Secteur : Vaulx-en-Velin, proximité immédiate des transports, écoles et commerces.
Vaulx-en-Velin, en pleine transformation urbaine, séduit par son cadre de vie dynamique et ses nombreuses infrastructures culturelles et sportives. À seulement 15 minutes du centre de Lyon, cette commune est idéalement connectée grâce au réseau TCL et bénéficie d'un accès rapide à la rocade Est et à l'aéroport Lyon-Saint-Exupéry. Parfait pour les jeunes actifs ou investisseurs en quête d'un quartier en plein essor !
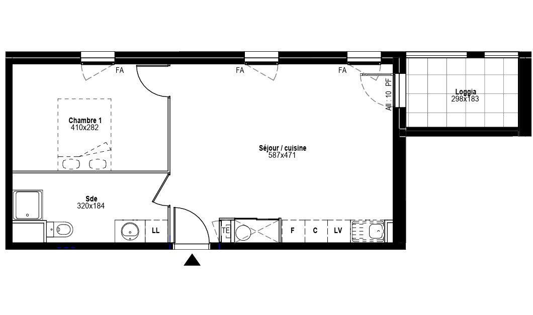
Découvrez cet appartement de 2 Pièces et de 42,3m² (carrez - superficie déclarée). Il est composé d'une belle chambre, d'un séjour cuisine lumineux, d'une salle de bain entièrement équipée (meuble vasque, douche, sèche-serviette) ainsi qu'un WC séparé. Un joli balcon complète ce bien pour profiter des beaux jours.
Ce bien propose des prestations de qualité, notamment un accès sécurisé par visiophone, des volets roulants électriques, un chauffage individuel au gaz et des finitions modernes avec du carrelage dans les pièces de vie et pièces humides, ainsi que du parquet stratifié dans la chambre.
LA RESIDENCE/LA COPROPRIETE
Résidence BBC RE2020. Isolation phonique et thermique selon la dernière réglementation en vigueur. Le bien est sous garantie décennale (10 ans) et biennale (2 ans) pour les éléments d'équipement. Nous contacter pour la livraison. DPE : en cours de réalisation par le promoteur. Bien en copropriété, Nb de lots : 79. La copropriété est en cours de création, elle n'a donc pas de procédure ni de litige en cours. Charges annuelles courantes en cours d'estimation par le syndic provisoire.
PRIX ? 181 054 € TVA réduite (sous conditions). Possibilité de parking en supplément.
Il n'y a PAS DE FRAIS D'AGENCE sur ce bien ! Et vous bénéficiez des Frais de notaire réduits (2.5% au lieu de 8%). Bien éligible au Prêt à Taux Zéro. D'autres lots sont disponibles dans cette résidence. Nous contacter pour plus de renseignements.
Pour plus d'informations, RDV auprès de Mme. Gabriella DESSEZ (E.I.) au O623 2258 56
Pour mieux vous servir, toute visite est obligatoirement précédée d'un rdv en agence ou visio pour une éventuelle visite virtuelle. Aucun document n'est envoyé par mail. Merci de votre compréhension.
Référence annonce : INNL-GADE-08
INFORMATIONS LÉGALES : Le barème des honoraires agence, et les mentions légales complètes sont disponibles sur notre site internet dans la rubrique /nos honoraires/.
Novéo Immo Lyon (SAS au capital de 10 000 €). Annonce relative au mandat de vente N°5. Transactions immobilières sans perception de fonds - SIRET : 910 642 263 00016 RCS de Strasbourg APE 7022Z - CPI N°6701 2022 000 000 016 Délivrée par la CCI d'Alsace Eurométropole.
La présente annonce immobilière a été rédigée sous la responsabilité éditoriale de Mme. Gabriella DESSEZ (E.I), Agent Commercial mandataire en immobilier immatriculé au Registre Spécial des Agents Immobilier immatriculé au Tribunal de Commerce de LYON sous le numéro 832 626 956.
Résidence en construction, visuels d'illustration, libre de droits.
42 m²
4 311 €
2
1
1
Contact Gabriella DESSEZ
Contacter gratuitement à l'aide du formulaire ci-dessous.