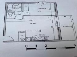
NOVILIS L'Union, vous propose sur la commune de Saint-Orens un appartement T2 de 41m² avec grand jardin sans vis à vis et sécurisé de 253m².
L'appartement se compose d'une entrée avec placard, d'un séjour donnant sur terrasse, d'une cuisine ouverte aménagée, d'une chambre avec placard, d'une salle de bain indépendante et un Wc.
La résidence sécurisée et arborée de 2012 est située au calme, à proximité du centre commercial et des transports en commun. Une place de parking en sous-sol. Pas de travaux à prévoir. Idéal investisseur ou premier achat. Vendu loué
41 m²
3 659 €
25 m²
2
1
1
1
2012
Oui
Consommations énergétiques
Logement économe
190
Logement énergivore (kWhEP/m2/an)
Contact NOVILIS IMMOBILIER L?UNION
Contacter gratuitement à l'aide du formulaire ci-dessous.