Les charges de location sont prévisionnelles mensuelles avec régularisation annuelle.
La part des honoraires pour la réalisation de létat des lieux de ce bien est de 120 euros.
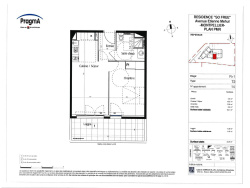
Juste à côté de la Clinique St Roch au 755 avenue Etienne Mehul à Montpellier, l'agence Immo MAPI vous propose à la location NON MEUBLÉ à l'année, un T2 de 42m2 dans une résidence récente (2015),lumineux avec exposition SUD et sans vis-à-vis. Ce bel appartement, en très bon état, se compose d'une entrée, un séjour avec cuisine, une grande chambre de 13.9m2, une salle d'eau avec WC et un grand balcon de près de 12m2. La résidence est sécurisée, calme et arborée. Bénéficiant d'un emplacement privilégié, tout près de la clinique St Roch et d'un accès rapide à l'autoroute, ce logement est également proche de tous commerces et arrêt de tram et bus (2 min de l'arrêt de TRAM Sabines). Possibilité de louer une place de parking au sein de la résidence, en plus pour 50 EUR / mois. PROTOCOLE VISITES : VISITE SUR DOSSIER UNIQUEMENT (merci d' adresser vos documents à location@immomapi.fr en précisant la Reférence du bien et votre numéro de tel.) Zone soumise à encadrement des loyers - Loyer mensuel hors charges : 715 EUR - Loyer de base : 596.40EUR -Loyer majoré : 715.70 EUR - Complément de loyer : 0 EUR - Provisions pour charges avec régularisation annuelle : 70 EUR (cette provision comprend les charges de syndic, la consommation d'eau ainsi que la taxe d'ordures ménagères) - Dépôt de garantie : 715 EUR -Montant du loyer mensuel charges comprises : 785 EUR - Honoraires charge locataire : 546 EUR (dont 120 EUR d'état des lieux). Montant estimé des dépenses annuelles d'énergie pour un usage standard : entre 327 EUR et 443EUR TTC / an. Date de référence des prix de l'énergie pour établir cette estimation : 2023. DPE classé B Les informations sur les risques auxquels ce bien est exposé sont disponibles sur le site Géorisques : www.géorisques.gouv.fr » Immo MAPI.
42.1 m²
11 m²
2
1
1
1
546 %
70 € / mois
2015
1 (11 m²)
Oui
Consommations énergétiques
Logement économe
73
Logement énergivore (kWhEP/m2/an)
Émissions de gaz à effet de serre
Faible émission de GES
9
Forte émission de GES(kgeqCO2/m2/an)
Contact Maurin Immobilier
Contacter gratuitement à l'aide du formulaire ci-dessous.