Situé à Bordeaux Rive Droite, dans un quartier paisible, cet appartement 2 pièces se trouve au sein d'une résidence contemporaine aux aménagements de qualités. Vous vous trouvez à deux pas des commerces de proximité, de lieux de vie agréables et des transports en communs, facilitant les déplacements au quotidien.
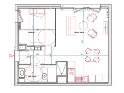
L'appartement dispose d'une belle pièce de vie de 29m2 avec cuisine ouverte, très lumineuse grâce à ses grandes ouvertures. Côté nuit, une chambre de 11m2 ainsi qu'une grande salle d'eau de plus de 6m2.
Un appartement idéal pour profiter d'un cadre de vie calme à deux pas des commodités.
Une place de parking sécurisée/couverte en SUS complète ce bien.
- Aucun travaux à prévoir - Ascenseur - Frais de Notaires Réduits - Garanties - RT 2012 - Disponible - ...
LE CALME ET LE CONFORT À DEUX PAS DES COMMODITÉS
Honoraires à la charge du vendeur. Dans une copropriété de 42 lots. Aucune procédure n'est en cours. DPE en cours. Les informations sur les risques auxquels ce bien est exposé sont disponibles sur le site Géorisques : georisques.gouv.fr.