L'agence 'MON BIEN A LA MER', spécialiste de l'immobilier neuf sur les côtes Bretonnes, vous présente :
Nouvelle Résidence Coeur de ville SAINT MALO - Emplacement recherché : Rue de Tourville, à pied : 3 min marché Rocabey, 10 min plage du Sillon, 6 min Gare TGV. Livraison mi 2028, Ascenseur, standing, frais de notaire réduits.
Résidence RE2020, ballon thermodynamique, chauffage individuel électrique, volets roulants électriques, wc suspendus, parquet stratifié, local vélo, et le confort de tout faire à pied dans un quartier recherché.
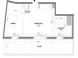
T2 au 3 étage donnant sur une superbe terrasse de 20,65m2 (12,12m de large) : - Séjour 19,88m2 - Chambre 12,02m2 - Salle d'eau douche à l'italienne sèche serviette vasque wc Parking inclus
Nous Consulter
Honoraires à la charge du vendeur. Non soumis au DPE. Les informations sur les risques auxquels ce bien est exposé sont disponibles sur le site Géorisques : georisques.gouv.fr.
Votre conseiller MON BIEN A LA MER : Gérant - .fr MON BIEN A LA MER Carte T CPI 2201 2018 000 025 040 RCP ACM IARD B1 7025278
37.81 m²
7 675 €
20 m²
2
1
1
1
3 sur 5
Oui
1
1
Contact mon bien à la mer
Contacter gratuitement à l'aide du formulaire ci-dessous.