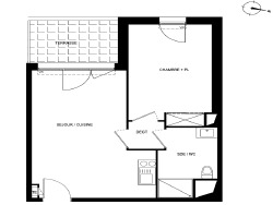
- ENCORE QUELQUES LOTS DE DISPONIBLES, CONTACTEZ-NOUS ! - Sur la ville de Toulon, dans le discret quartier de Vert Coteau, à quelques minutes du centre-ville de Toulon. Résidence contemporaine de standing prévue pour décembre 2021, appartement 2 pièces exposé ouest avec terrasse et place en sous-sol privative. Appartement moderne avec ses larges baies vitrées, peinture lisse sur tous les murs, portes design rainurées, carrelage 45*45 minimum (coloris à choisir), volets roulants électriques dans les séjours, chauffage individuel électrique avec thermostat électronique, production d'eau chaude sanitaire par chauffe-eau thermodynamique collectif avec comptage individuel. Petits commerces, services de proximité, infrastructures scolaires et sportives confèrent à ce quartier une douceur de vivre recherchée. Appartement éligible au Prêt à Taux 0% et éligible au dispositif PINEL. PRIX DIRECT PROMOTEUR 184 000 EUROS.
41.42 m²
4 442 €
21 m²
2
1
1
1
1 sur 4
2021
Ouest
Oui
1
Oui
Oui (43 lots)
Contact Boero Patrimoine
Contacter gratuitement à l'aide du formulaire ci-dessous.