Centre-ville : situé au 5? étage avec ascenseur d'un immeuble semi récent, sécurisé et calme, ce 2 pièces de 51 m² entièrement rénové est en excellent état et prêt à vivre. Lumineux, au calme et sans travaux, il bénéficie d'une vue dégagée sur les toits du centre-ville et la cathédrale.
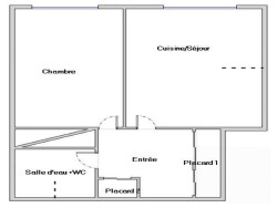
Il se compose d'un hall d'entrée avec de spacieux placards de rangement, d'un séjour lumineux avec carrelage au sol, ouvert sur une cuisine américaine moderne et entièrement équipée (hotte, four et plaque de cuisson électrique).
L'espace nuit comprend une grande chambre confortable, une salle d'eau avec douche à l'italienne ainsi qu'un WC.
Les atouts : vue dégagée, calme à cette hauteur, beaux volumes, double vitrage phonique et thermique, interphone, fibre optique, chauffage et eau chaude collectifs. L'état général est irréprochable.
La copropriété est gérée par un syndic professionnel et bénéficie d'un environnement agréable et recherché.
À seulement 2 minutes à pied de la rue Carnot, vous profitez de toutes les commodités, commerces, transports et services à proximité immédiate.
Appartement clé en main, idéal pour une résidence principale ou un investissement de qualité.
À visiter sans tarder.
Contactez nous pour organiser une visite.
Honoraires à la charge du vendeur. Dans une copropriété de 43 lots. Quote-part moyenne du budget prévisionnel 2 466 /an. Aucune procédure n'est en cours. Classe énergie E, Classe climat E Montant estimé des dépenses annuelles d'énergie pour un usage standard : entre 1290.00 et 1746.00 sur les années 2021, 2022 et 2023 (abonnements compris). Les informations sur les risques auxquels ce bien est exposé sont disponibles sur le site Géorisques : georisques.gouv.fr.
Votre conseiller eXp Realty : Benjamin MICHELI Agent commercial (Entreprise individuelle) RSAC 878106665 Gap RCP MMA 127.122.454
51.1 m²
2 446 €
2
1
1
1
5 sur 7
200.00 € / mois
1970
Ouest
Nord
Oui
Oui
Oui
Oui (43 lots)
Consommations énergétiques
Logement économe
203
Logement énergivore (kWhEP/m2/an)
Émissions de gaz à effet de serre
Faible émission de GES
61
Forte émission de GES(kgeqCO2/m2/an)
Contact Iad France - Benjamin MICHELI
Contacter gratuitement à l'aide du formulaire ci-dessous.