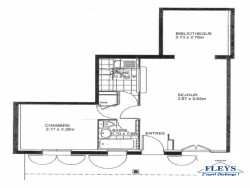
Venez découvrir ce T2 Bis pour une surface d'environ 46 m². Il se compose d'une entrée, séjour, cuisine, bureau, couloir, salle d'eau/WC. Jardin privatif et terrasse pour une surface totale d'environ 40 m².
Place de parking couverte et box de rangement dans les parties communes.
Le bien se situe dans une copropriété. Pas de procédure en cours. Charge annuelle environ 584.
Honoraires à la charge du vendeur. Dans une copropriété de 120 lots. Quote-part moyenne du budget prévisionnel 584 /an. Aucune procédure n'est en cours. Classe énergie C, Classe climat B Montant moyen estimé des dépenses annuelles d'énergie pour un usage standard, établi à partir des prix de l'énergie de l'année 2000 : entre 1217.00 et 1432.00 . Les informations sur les risques auxquels ce bien est exposé sont disponibles sur le site Géorisques : georisques.gouv.fr.
46.5 m²
2 903 €
27 m²
2
1
1
1
2008
1
1
Oui (120 lots)
Consommations énergétiques
Logement économe
154
Logement énergivore (kWhEP/m2/an)
Émissions de gaz à effet de serre
Faible émission de GES
9
Forte émission de GES(kgeqCO2/m2/an)
Contact Arnaud QUERCY
Contacter gratuitement à l'aide du formulaire ci-dessous.