T2 de 42,5m2-Rue du Lac- Garage fermé- Immeuble de 2014
Lyon 69003
0
Honoraires à la charge du vendeur.
RUE DU LAC- 42,5m2- BOX EN SOUS-SOL
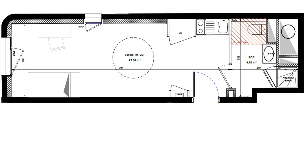
Appartement T2 de 42,5 m² situé au 3 ème étage, dans une résidence de 2011 d'un immeuble avec ascenseur. L'appartement compte une grande pièce de vie avec une cuisine entièrement aménagée et équipée, une entrée avec une salle d'eau et WC indépendants. Une chambre de plus de 12m2 avec un placard. Il bénéficie d'un garage fermé en sous sol. Chauffage et eau chaude collectifs avec compteurs individuels. Huisseries double vitrage PVC.
N'hésitez plus et venez visiter ce T2 ! Contacter Sophie Fromentin agent commercial (RSAC 440 973 980) au 0661813143.
Charges : 128/mois Nombre de lots d'habitations : 56, sur 2 bâtiments Taxe foncière : 889 DPE:En cours Pas de procédure en cours Honoraires d'agence à charge vendeur.
Honoraires à la charge du vendeur. Dans une copropriété de 110 lots. Aucune procédure n'est en cours. DPE en cours. Les informations sur les risques auxquels ce bien est exposé sont disponibles sur le site Géorisques : georisques.gouv.fr.