T2 de 44.44m2 avec une terrase de 43.46m2 orienté SO
Challans 85300
0
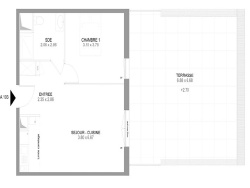
Hélène PARISOT , conseillère en immobilier Noovimo, vous propose cet appartement T2 de 44.44m2 sur Challans exposé S/O. Il comprend une entrée avec placard, une pièce de vie de 24.82m2 avec un espace cuisine, une salle d'eau, une chambres avec un accés terrasse et un wc. Le plus : une terrase de 43.46m2 et une place de parkings. De votre futur appartement, vous pourrez profiter d'un cadre de vie en centre ville de Challans. Toutes commodités à proximité : écoles, commerces, supermarché, équipements sportifs et de loisirs. Arrêt Chall'en bus (navette gratuite) à 100 m. Gare de Challans à 1,6 km La résidence sera livrée au second trimestre 2024. Programme RT 2012 avec superbe jardin généreusement arboré et parking privatif sécurisé. Prix promoteur 197 400EUR. A réserver plus. Plusieurs appartements disponible à ce jour du T2 au T4. contactez moi au 06 89 93 96 03 ou par mail hparisot@noovimo.fr pour toutes demandes de renseignements. Votre agent indépendant NOOVIMO inscrit au RSAC de le roche sur yon no 841 556 533 - Annonce rédigée et publiée par un Agent Mandataire - - Annonce rédigée et publiée par un Agent Mandataire -
44.44 m²
4 442 €
24 m²
2
1
1
1
1 sur 3
01/04/2024
2024
Sud
Ouest
Oui
1
1
Oui (2 lots)
Contact PARISOT
Contacter gratuitement à l'aide du formulaire ci-dessous.