T2 de 52 m² dans immeuble emblématique de Confluence
Lyon 69002
0
Honoraires à la charge du vendeur.
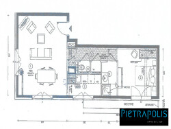
Très joli T2 de 52 m² dans une copropriété située aux premières loges du Parc, de la place nautique et de la Saône, à la pointe du secteur de la Darse, au coeur de Confluence.
Au calme, avec une vue dégagée, la lumière comme la qualité des matériaux et des équipements rendent le lieu paisible et chaleureux.
On aime le parquet de chêne, la grande pièce de vie en double exposition, la jolie cuisine très récente, l'espace nuit séparé, les nombreux rangements, la fonctionnalité de l'ensemble et le petit espace extérieur.
Dans une résidence énergétiquement performante, on apprécie bien sûr le chauffage et le rafraîchissement par le sol inclus dans les charges, comme l'eau froide et chaude..
Grande cave de 6 m², fibre, locaux vélos, services, commerces et transports à proximité immédiate,
Honoraires à la charge du vendeur. Dans une copropriété de 138 lots. Aucune procédure n'est en cours. Classe énergie B, Classe climat B Montant estimé des dépenses annuelles d'énergie pour un usage standard : entre 460.00 et 680.00 sur les années 2021, 2022 et 2023 (abonnements compris). Les informations sur les risques auxquels ce bien est exposé sont disponibles sur le site Géorisques : georisques.gouv.fr.