L'agence 'MON BIEN A LA MER', spécialiste de l'immobilier neuf sur les côtes Bretonnes, vous présente :
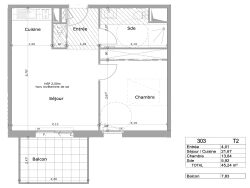
Une vue magnifique sur la rade de BREST pour ce T2 avec belle terrasse. Dernier étage.
Sur une petite résidence de 13 lots seulement. Commerces bus et tram -500m. Plage Sainte Anne à 10 min en voiture. Ascenseur. Frais de notaire réduits. Parking sous sol.
Nous Consulter.
Honoraires à la charge du vendeur. Classe énergie B, Classe climat B Montant estimé des dépenses annuelles d'énergie pour un usage standard : entre 380.00 et 580.00 sur les années 2021, 2022 et 2023 (abonnements compris). Les informations sur les risques auxquels ce bien est exposé sont disponibles sur le site Géorisques : georisques.gouv.fr.
Votre conseiller MON BIEN A LA MER : Gérant - .fr MON BIEN A LA MER Carte T CPI 2201 2018 000 025 040 RCP ACM IARD B1 7025278
47 m²
5 298 €
2
1
1
1
3 sur 3
Oui
1
1
Consommations énergétiques
Logement économe
72
Logement énergivore (kWhEP/m2/an)
Émissions de gaz à effet de serre
Faible émission de GES
9
Forte émission de GES(kgeqCO2/m2/an)
Contact mon bien à la mer
Contacter gratuitement à l'aide du formulaire ci-dessous.