Appartement T2 en rez-de-jardin avec stationnements à Lèves !
Bienvenue dans votre futur chez-vous ! Nous sommes ravis de vous présenter ce spacieux deux pièces doté d'une agréable terrasse, d'un jardin privatif et de deux places de stationnement. Le tout, situé dans une résidence au centre ville de Lèves, proche de tout commerce et de toutes commodités. Fonctionnel et lumineux, ce bien vous offrira un cadre de vie confortable et pratique.
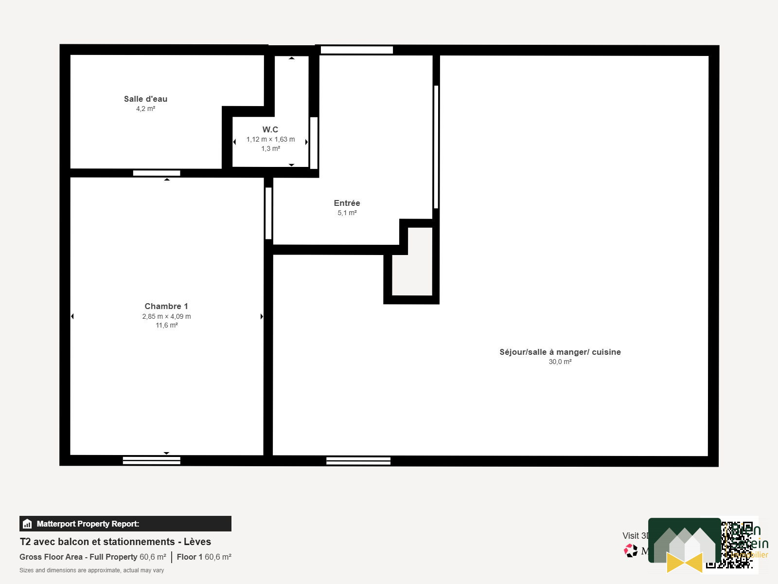
Découvrez un appartement composé comme suit : - Une entrée avec placard/buanderie - Un grand séjour - salle à manger avec cuisine de plus de 25 m² - Une chambre avec accès sur la terrasse - Une salle de bains
Espaces extérieurs : - Une terrasse - Un jardin clos
Coté confort : - Situé en rez-de-chaussée, - Proximité immédiate des commodités, - Places de stationnement.
L'emplacement : Toutes les commodités vous seront accessibles à pieds : vous trouverez un bus à quelques pas seulement, les commerces en proximité immédiate.
N'hésitez pas à contacter votre agent au Noeud Pap' pour obtenir plus d'informations et visiter cet appartement ! ? et donc proche de tout commerce. Fonctionnel et lumineux, ce bien vous offrira un cadre de vie confortable et pratique.
Honoraires à la charge du vendeur. Dans une copropriété de 159 lots. Aucune procédure n'est en cours. Classe énergie D, Classe climat A Montant estimé des dépenses annuelles d'énergie pour un usage standard : entre 690.00 et 934.00 sur les années 2021, 2022 et 2023 (abonnements compris). Les informations sur les risques auxquels ce bien est exposé sont disponibles sur le site Géorisques : georisques.gouv.fr.
43.06 m²
3 017 €
2
1
1
1
94.00 € / mois
2006
2
1
Oui (159 lots)
Consommations énergétiques
Logement économe
184
Logement énergivore (kWhEP/m2/an)
Émissions de gaz à effet de serre
Faible émission de GES
5
Forte émission de GES(kgeqCO2/m2/an)
Contact Haris TUFEKOVIC
Contacter gratuitement à l'aide du formulaire ci-dessous.