VOTRE T2 AVEC TERRASSE/PARKING A DEUX PAS DE TOUTE COMMODITES
À Bruges, à quelques minutes seulement du centre-ville et de toutes les commodités, découvrez une résidence où nature et quotidien s'accordent harmonieusement.
Pensée comme un havre de verdure, la résidence s'implante dans un écrin paysager soigneusement repensé. Une allée serpente à travers les bosquets et plantes tapissantes, menant à une clairière ombragée et aménagée pour la détente en famille ou entre voisins. Ce jardin vivant, protégé et pédagogique, met en valeur la biodiversité locale grâce à des panneaux explicatifs sur la faune et la flore. En façade, les généreux massifs arbustifs et plantes grimpantes prolongent la voie verte et le futur square public jusqu'au pied des immeubles, intégrant pleinement la résidence dans son environnement naturel et urbain.
La situation est idéale : le tramway, la gare et les transports en commun se trouvent à moins de 5 minutes à pied. Le centre-ville de Bruges, quant à lui, est accessible en seulement 10 minutes de marche. Les commerces et services essentiels, eux, sont rapidement accessibles pour vous garantir un quotidien pratique et confortable.
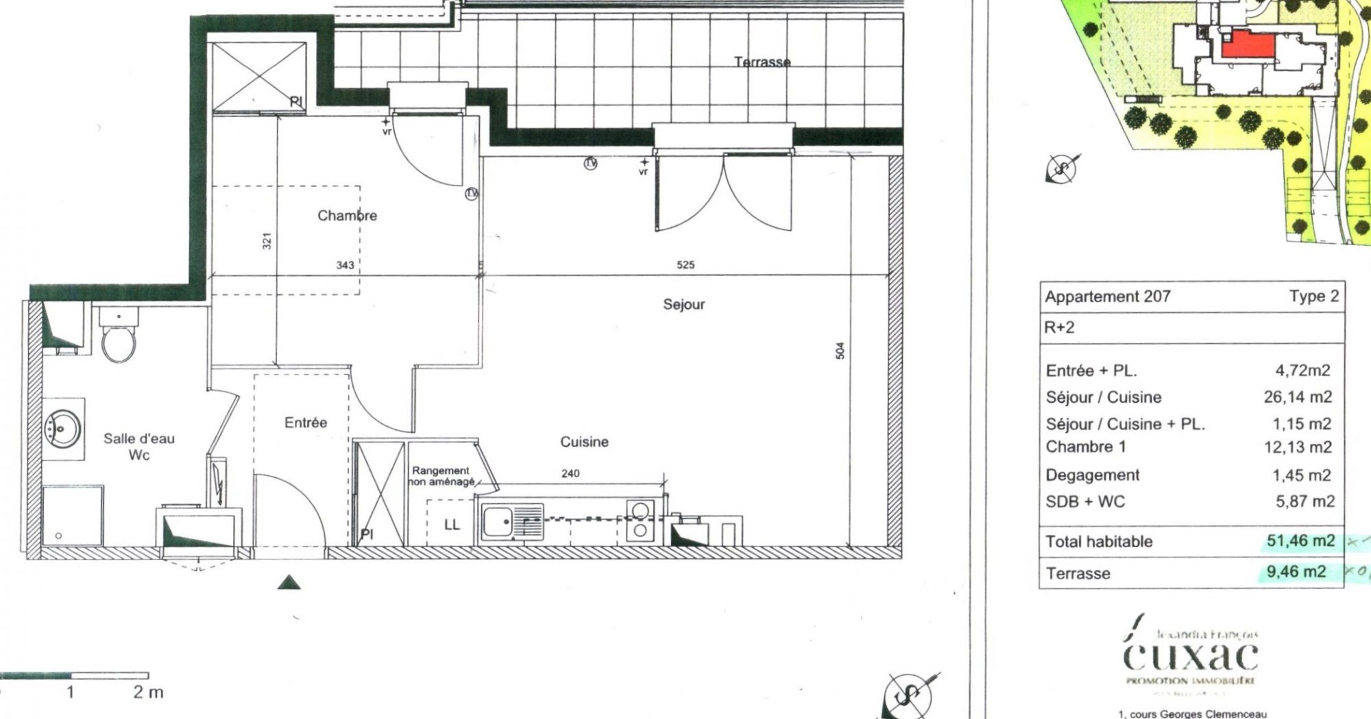
Cet appartement 2 pièces de 41 m² séduit par son agencement optimisé et ses espaces bien pensés. Il s'ouvre sur une belle pièce de vie de 22 m², offrant un cadre agréable pour vos moments du quotidien, avec un accès direct à une loggia idéale pour aménager un espace extérieur protégé. Un cellier attenant vient renforcer la fonctionnalité de l'ensemble, offrant un espace de rangement précieux et discret.
La chambre, spacieuse, garantit un confort appréciable, tandis que la salle de bain moderne avec WC complète ce bien avec sobriété et praticité. L'ensemble offre un cadre de vie équilibré, entre intimité, confort et efficacité, au sein d'un environnement paysager unique.
Conforme à la réglementation RE 2020, cet appartement vous assure une excellente performance énergétique, pour un confort optimal en toute saison et des économies d'énergie durables.
Une place de Parking (en sus 15 000) complète ce bien.
- Aucun travaux à prévoir - Frais de Notaires Réduits - Garanties - RE 2020 - ...
VOTRE T2 AVEC TERRASSE/PARKING A DEUX PAS DE TOUTE COMMODITES
Honoraires à la charge du vendeur. Dans une copropriété de 58 lots. Aucune procédure n'est en cours. DPE en cours. Les informations sur les risques auxquels ce bien est exposé sont disponibles sur le site Géorisques : georisques.gouv.fr.