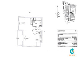
Bel appartement situé au 1er étage d'une petite copropriété avec vue dégagée. Entrée, séjour-cuisine, chambre, rangements et balcon pour profiter de l'extérieur.
Le chauffage de l'immeuble est individuel. L'intérieur de l'appartement est en bon état. A ce lot s'ajoute un emplacement de parking.
Cet appartement est vendu loué. Locataire en place depuis mi-2021, sans incident de paiement.
Informations financières :
Loyer: 463,96 hors charges + 43 de provisions. Charges de copropriété: 1000 Taxe foncière : 611 dont 91 de TOM.
Honoraires à la charge du vendeur. Dans une copropriété de 172 lots. Aucune procédure n'est en cours. DPE en cours. Les informations sur les risques auxquels ce bien est exposé sont disponibles sur le site Géorisques : georisques.gouv.fr.
41.24 m²
2 643 €
20 m²
2
1
1
1 sur 2
2012
5
Oui
1
Oui (172 lots)
Consommations énergétiques
Logement économe
53
Logement énergivore (kWhEP/m2/an)
Émissions de gaz à effet de serre
Faible émission de GES
12
Forte émission de GES(kgeqCO2/m2/an)
Contact C2i SUD OUEST
Contacter gratuitement à l'aide du formulaire ci-dessous.