Situé au coeur d'une résidence sécurisée avec piscine, ce bel appartement T2 de 45,05 m² est vendu déjà loué, locataire à jour de tous paiements
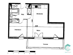
La pièce de vie principale se compose d'un séjour spacieux de 26 m² avec kitchenette, une exposition plein Sud. Cet espace s'ouvre sur un large balcon de près de 10 m².
Côté nuit, il dipose d'une chambre confortable avec placard intégré, complétée par une salle de bain et des WC séparés. L'entrée agencée dispose d'un rangement intégré.
Sur le plan financier :
- loyer mensuel 465 charges comprises. - La taxe foncière s'élève à 573
- Les charges de copropriété, incluant l'entretien de la piscine et des espaces communs, tournent autour de 70 par mois.
Contactez-nous pour organiser une visite
Honoraires à la charge du vendeur. Dans une copropriété de 252 lots. Aucune procédure n'est en cours. Classe énergie C, Classe climat A Montant estimé des dépenses annuelles d'énergie pour un usage standard : entre 660.00 et 940.00 sur les années 2021, 2022 et 2023 (abonnements compris). Les informations sur les risques auxquels ce bien est exposé sont disponibles sur le site Géorisques : georisques.gouv.fr.
45.05 m²
1 441 €
9 m²
2
1
1
1 (séparé)
1 sur 1
2006
1 (9 m²)
2
Oui
Oui (252 lots)
Consommations énergétiques
Logement économe
163
Logement énergivore (kWhEP/m2/an)
Émissions de gaz à effet de serre
Faible émission de GES
4
Forte émission de GES(kgeqCO2/m2/an)
Contact C2i SUD OUEST
Contacter gratuitement à l'aide du formulaire ci-dessous.