À VENDRE - Appartement T2 avec balcon et parking à Castelnau-le-Lez (34)
Localisation : Castelnau-le-Lez Type : Appartement T2 Idéal investissement locatif Etage : 2ème et dernier étage Stationnement : Place de parking en résidence sécurisée Extérieur : Grand balcon de 10m²
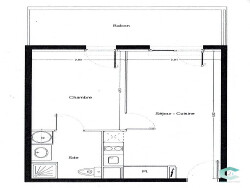
Situé dans une résidence sécurisée, cet appartement lumineux et fonctionnel offre un cadre de vie agréable, à proximité des commodités et des transports. L'appartement vous propose une entrée avec placard, menant à un vaste séjour de 20m² avec son espace cuisine. La chambre, d'une superficie de près de 12m², ainsi que le séjour, s'ouvrent sur un grand balcon de 10m², parfait pour profiter de l'extérieur en toute tranquillité. Vous y trouverez également une salle d'eau avec WC.
Informations financières :
Loyer mensuel hors charges : 581 + charges 44 = 625 loyer total Garage en supplément : 45/mois de loyer perçu Charges de copropriété : 100/moisTaxe foncière : 976
Ce bien sera idéal pour un premier investissement dans l'immobilier locatif, offrant plusieurs possibilités en terme de projets pour l'avenir. Offre à faire !
Contactez-nous dès maintenant pour plus d'informations ou organiser une visite !
Honoraires à la charge du vendeur. Dans une copropriété de 116 lots. Aucune procédure n'est en cours. DPE en cours. Les informations sur les risques auxquels ce bien est exposé sont disponibles sur le site Géorisques : georisques.gouv.fr.
36.52 m²
4 652 €
2
1
1
1
2 sur 2
2010
1
1
Oui (116 lots)
Consommations énergétiques
Logement économe
180
Logement énergivore (kWhEP/m2/an)
Émissions de gaz à effet de serre
Faible émission de GES
5
Forte émission de GES(kgeqCO2/m2/an)
Contact C2i SUD OUEST
Contacter gratuitement à l'aide du formulaire ci-dessous.