Goodshowcase
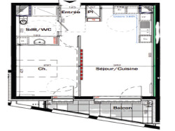
Location appartement 2 pièces

Location appartement 2 pièces
388 €

Contact LOGIEST

Contacter gratuitement à l'aide du formulaire ci-dessous.


Afficher le téléphone


Annonces similaires

Location appartement

Abreschviller 57560 - 0

395 €

...Chauffage individuel ELECTRIQUEDisponible immédiatementLoyer 385€ par mois Charges comprises...

Voir l'annonce

Location appartement

Forbach 57600 - 0

410 €

...Ce logement traversant baigné de lumière naturelle vous offre une vue agréable sur la rue et un...

Voir l'annonce

Location appartement

Dieuze 57260 - 0

350 €

...Une cave...

Voir l'annonce

Location appartement

Metz 57000 - 0

380 €

...Studio disponible à la location le 01/01/26 pour un loyer de 500 euros...

Voir l'annonce

Location appartement

Saint-Avold 57500 - 0

350 €

...Loyer de base 320 €/mois...

Voir l'annonce