T2 lumineux à réaménager ? Un beau potentiel au c?ur d
Le Châtelet-en-Brie 77820
0
Honoraires à la charge du vendeur.
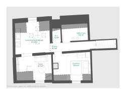
T2 de 41 m² - 1er étage - Traversant nord-sud - Centre-ville Le Châtelet-en-Brie (77) Dans une petite copropriété intimiste de 4 logements, ce T2 traversant nord-sud offre luminosité et potentiel d'aménagement, au cœur du centre-bourg : commerces, écoles et marché accessibles à pied. À 10 min de Melun, 15 min de Fontainebleau et à proximité immédiate de la Forêt de Fontainebleau, profitez d'un cadre de vie recherché, entre nature et accessibilité vers Paris (liaisons ferroviaires renforcées dès 2026). Le bien : vendu en l'état (travaux à prévoir) Ce T2 de 41 m² est proposé en l'état, avec une base existante à repenser partiellement, offrant une belle opportunité de personnalisation. Certaines pièces sont déjà en place, tandis que d'autres sont à créer, permettant d'adapter le logement à vos besoins. - Chambre existante à rénover entièrement - Grande salle d'eau déjà existante - WC séparés existants - Création à prévoir d'une pièce de vie avec cuisine - Configuration traversante offrant un beau potentiel de luminosité Stationnement et cave disponibles en options payantes, sous réserve de disponibilité. Un projet idéal pour les acquéreurs souhaitant partir d'une base existante tout en personnalisant leur futur logement. Livraison prévisionnelle : 4ème trimestre 2026 Plans et visuels fournis à titre indicatif et non contractuels, pour vous accompagner dans votre projection. Mention légale : vente sous réserve de division et constitution de la copropriété. Pourquoi c'est une opportunité - Petite copropriété de 4 logements seulement - Luminosité traversante nord-sud - Emplacement central recherché - Base existante (salle d'eau, WC, chambre) - Fort potentiel de valorisation Idéal investisseur, primo-accédant ou acquéreur souhaitant créer un bien à son image dans un secteur dynamique.
Conformément à l'article 6-2 de la loi du 2 janvier 1970, le titulaire de la carte professionnelle informe le signataire que ce document lui est présenté par une personne dûment habilitée par lui et exerçant sous le statut d'agent commercial avec le N° RSAC Melun : 901 527 499