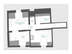
T2 de 41 m² - 1er étage - Traversant nord-sud - Centre-ville Le Châtelet-en-Brie (77) Dans une petite copropriété intimiste de 4 logements, ce T2 traversant nord-sud offre luminosité, calme et praticité au cœur du centre-bourg : commerces, écoles et marché accessibles à pied. À 10 min de Melun, 15 min de Fontainebleau et à proximité immédiate de la Forêt de Fontainebleau, profitez d'un cadre naturel recherché tout en restant connecté à Paris (liaisons ferroviaires renforcées dès 2026). Le bien : livré en état fini Ce T2 de 41 m² est proposé en état fini, offrant un logement fonctionnel et lumineux, prêt à vivre, avec certaines possibilités d'adaptation selon vos envies : - Pièce de vie agréable et lumineuse - Cuisine ouverte - 1 chambre confortable - Grande salle d'eau, rare pour un T2 - WC séparés - Chauffage électrique individuel Stationnement et cave disponibles en options payantes, sous réserve de disponibilité. Option en état à rénover possible, pour ceux qui souhaitent personnaliser entièrement le logement. Livraison prévisionnelle : 1er trimestre 2027 Plans et visuels fournis à titre indicatif et non contractuels, pour vous aider à vous projeter dans ce logement fonctionnel et lumineux. Mention légale : vente sous réserve de division et constitution de la copropriété. Pourquoi c'est une opportunité - Petite copropriété de 4 logements seulement - Luminosité traversante nord-sud - Emplacement central recherché - Logement fonctionnel et prêt à vivre - Possibilité optionnelle de créer un intérieur à votre image Idéal investisseur ou premier achat, dans un secteur alliant nature, dynamisme local et accessibilité Parisienne.
Conformément à l'article 6-2 de la loi du 2 janvier 1970, le titulaire de la carte professionnelle informe le signataire que ce document lui est présenté par une personne dûment habilitée par lui et exerçant sous le statut d'agent commercial avec le N° RSAC Melun : 901 527 499