T2 meublé à Canet en Roussillon investissement LMNP
Canet-en-Roussillon 66140
0
Honoraires à la charge du vendeur.
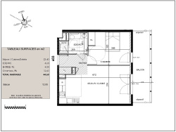
L'agence LAVILLE IMMO vous propose un appartement type T2 avec balcon sur la commune de Canet en Roussillon. Appartement vendu meublé dans une résidence séniors.
Entièrement adaptés pour les personnes âgées et équipés d'un rafraichisseur d'air Une cuisine ouverte et équipée Une salle d'eau avec douche à l'italienne, barre de maintien et siège de douche Volets roulants électriques Des placards aménagés appartement avec balcon
Les espaces collectifs : Un restaurant Un salon TV Une salle de sport Un espace beauté Une grande terrasse Une piscine. La Location Meublée Non Professionnelle ou LMNP est notamment une loi à connaître si vous êtes un « Loueur Meublé en Non Professionnel », car elle peut vous permettre de ne pas payer d'impôts sur les revenus tirés de la location, pendant un certain nombre d'années.
Pour tout complément d'information, contactez votre conseiller immobilier au 0611 03 47 20. Bien soumis au statut de copropriété. Pierre DORNIER, - RSAC No828 832 824. Ville du greffe : PERPIGNAN Bien soumis au statut de la copropriété. Nombre de lots principaux : 55
45 m²
5 623 €
12 m²
23 m²
2
1
1
1
6
30/09/2025
2025
Est
1 (12 m²)
Oui
1
Oui
Oui (55 lots)
Consommations énergétiques
Logement économe
39
Logement énergivore (kWhEP/m2/an)
Émissions de gaz à effet de serre
Faible émission de GES
1
Forte émission de GES(kgeqCO2/m2/an)
Contact DORNIER
Contacter gratuitement à l'aide du formulaire ci-dessous.