Honoraires à la charge de l'acquéreur (Prix hors honoraires : 0 euros).
Les charges de location sont prévisionnelles mensuelles avec régularisation annuelle.
La part des honoraires pour la réalisation de létat des lieux de ce bien est de 150 euros.
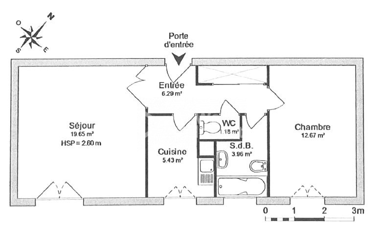
Découvrez ce charmant T2 meublé en plein coeur de Saint-Priest au 18 rue de la Cordière. Imaginez-vous dans un cocon moderne et chaleureux de 38 m², avec balcon de 10 m². SEUL LES DOSSIERS RECUS PAR MAIL SERONT TRAITES. MERCI D4ADRESSER UN MESSAGE VIA L'ANNONCE POUR OBTENIR LE DOSSIER Proche de toutes commodités : tramway, écoles, restaurants, commerces et médecins à quelques minutes à pied. Fibre éligible.
Pour plus d'informations, contactez Sérénité Conseil Immobilier Civrieux.
Honoraires de 550 TTC à la charge du locataire comprenant 150 TTC pour l'état des lieux. Loyer de base 800 /mois. Provision sur charges 50 /mois, régularisation annuelle. Dépôt de garantie 800 . Classe énergie C, Classe climat C Montant estimé des dépenses annuelles d'énergie pour un usage standard : entre 310.00 et 470.00 sur les années 2021, 2022 et 2023 (abonnements compris). Les informations sur les risques auxquels ce bien est exposé sont disponibles sur le site Géorisques : georisques.gouv.fr.