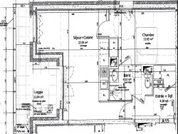
En exclusivité contre Ampère, dans une rue sans circulation, beau T2 moderne 44m² de 2012 en très bon état. Le grand séjour-cuisine donne accès à la terrasse profonde de 11m², regardant le couchant Ouest du Vercors. le bien est traversant et lumineux Ouest et Nord . La chambre coté cour mesure 12m² et possède une grande salle d'eau + wc. Bonnes propriétés thermiques grâce aux baies vitrées PVC double vitrage , aux murs et toits isolés , associé au chauffage collectif urbain. L'immeuble est très bel état avec ascenseur menant jusqu'aux garages. Petit immeuble 4 étages en accès plain pied ( 37 lots habités), adapté pour Personnes a Mobilité Réduite PMR et entouré de bureaux. Un local a vélo accompagne le bien, et un grand garage en sous-sol vous est proposé en plus , indépendamment de la vente de l'appartement. Idéalement situé contre toutes les commodités: écoles et commerces, proche gare SNCF, Minatec à vélo et accès rocade, et salle de spectacle. Cet appartement s'adapte aussi bien pour une résidence principale , un pied a terre, ou pour investissement locatif.
Honoraires à la charge du vendeur. Dans une copropriété de 50 lots. Quote-part moyenne du budget prévisionnel 1 280 /an. Aucune procédure n'est en cours. Classe énergie C, Classe climat C Montant estimé des dépenses annuelles d'énergie pour un usage standard : entre 480.00 et 690.00 sur les années 2021, 2022 et 2023 (abonnements compris). Les informations sur les risques auxquels ce bien est exposé sont disponibles sur le site Géorisques : georisques.gouv.fr. Ce bien vous est proposé par un agent commercial (Entreprise individuelle).