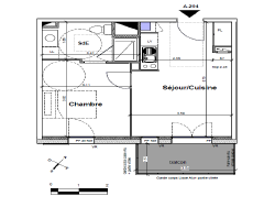
Votre conseillère Justine PAYS - Tél. 06.71.09.94.81 agissant sous le statut d'agent commercial indépendant auprès de l'agence ESTUAIRE IMMOBILIER de GRANDCHAMP DES FONTAINES, immatriculée au RSAC du tribunal de commerces de NANTES sous le numéro 2021AC00031 vous présente : Nouveauté Estuaire immobilier ! Programme neuf dans le quartier recherché Le Landreau, à deux pas de toutes les commodités et du tramway. T2 au 2e étage d'environ 36m2 se composant d'une chambre, d'une cuisine ouverte sur le séjour et d'une salle d'eau avec WC. Un balcon de 5m2 exposé Sud/Est vous permettra de profiter pleinement de l'extérieur. Un parking en sous-sol complète ce bien. Copropriété composée de 60 lots principaux. Eligible loi PINEL. D'autres appartements de type 2 sont disponibles, contactez-nous pour plus de renseignements. Livraison prévue :31/12/2024