L'agence 'MON BIEN A LA MER', spécialiste de l'immobilier neuf sur les côtes Bretonnes, vous présente :
Rare : Plein Coeur de ville, tous commerces à pied. Belle Résidence en construction centre de CROZON : Suite au succès commercial de la 1è tranche, lancement de la nouvelle pour livraison fin 2027.
Résidence RE2020 et certifiée NF HABITAT. Frais de notaire réduits. Ascenseur, chauffage par Pompe à chaleur, parking sous sol, résidence sécurisée, volets roulants électriques, douches à l'italienne, local vélo : tout a été pensé pour votre confort.
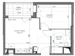
T2 fonctionnel au dernier étage offrant : - Séjour de 19,67m2 - Chambre 11,34m2 - salle d'eau douche sèche serviette vasque wc 5,86m2 - loggia 4,77m2 - parking inclus
Nous consulter.
Honoraires à la charge du vendeur. Non soumis au DPE. Les informations sur les risques auxquels ce bien est exposé sont disponibles sur le site Géorisques : georisques.gouv.fr.
Votre conseiller MON BIEN A LA MER : Gérant - .fr MON BIEN A LA MER Carte T CPI 2201 2018 000 025 040 RCP ACM IARD B1 7025278
36.87 m²
4 608 €
20 m²
2
1
1
1
4 sur 4
Oui
1
1
Contact mon bien à la mer
Contacter gratuitement à l'aide du formulaire ci-dessous.