Livraison 2027 o Prestations haut de gamme o Idéal primo-accédants Découvrez ce charmant T2 de 42,69 m2, situé en rez-de-chaussée dans la résidence neuve Les Roches, au coeur d'un environnement calme et verdoyant, route des Brasses. Sa terrasse de 13,92 m2 prolongée par un jardin privatif de 24,23 m2 offre un véritable espace extérieur rare et recherché dans le secteur. Les atouts du logement
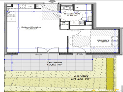
Séjour/cuisine lumineux de 25,18 m2, ouvert sur la terrasse et le jardin.
Chambre de 11,69 m2, idéalement agencée.
Salle d'eau avec WC de 5,19 m2.
Placard intégré dans l'entrée
Terrasse de 13,92 m2 et jardin de 24,23 m2, parfaits pour profiter des beaux jours.
Plan parfaitement optimisé, sans perte d'espace.
Un appartement fonctionnel, lumineux et très agréable à vivre. Prestations haut de gamme du programme : Confort & qualité