Honoraires à la charge de l'acquéreur (Prix hors honoraires : 220000 euros).
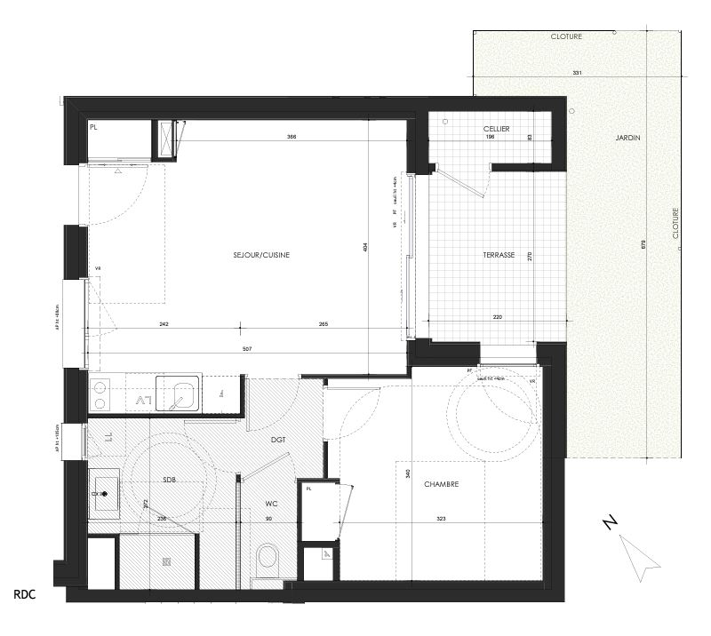
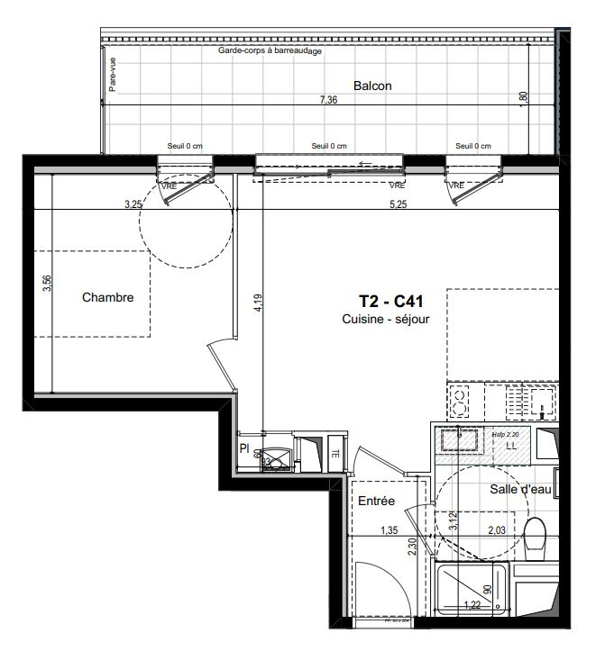
SAINT-SERVAN CENTRE AU CALME - A proximité des plages et commerces, au rez-de-chaussée sur cour d'une petite copropriété, un appartement T2, comprenant : un salon-séjour lumineux, une cuisine aménagée et équipée indépendante, une grande chambre avec placards, une salle d'eau, un wc indépendant et un débarras. Un cellier vient compléter cette offre.
Honoraires inclus de 6% TTC à la charge de l'acquéreur. Prix hors honoraires 220 000 . Dans une copropriété de 12 lots. Quote-part moyenne du budget prévisionnel 300 /an. Aucune procédure n'est en cours. Classe énergie E, Classe climat E Montant estimé des dépenses annuelles d'énergie pour un usage standard : entre 1410.00 et 1940.00 sur les années 2021, 2022 et 2023 (abonnements compris). Les informations sur les risques auxquels ce bien est exposé sont disponibles sur le site Géorisques : georisques.gouv.fr.
49.12 m²
4 748 €
20 m²
2
1
1
1 (séparé)
6 %
Ouest
Oui (12 lots)
Consommations énergétiques
Logement économe
308
Logement énergivore (kWhEP/m2/an)
Émissions de gaz à effet de serre
Faible émission de GES
65
Forte émission de GES(kgeqCO2/m2/an)
Contact CAYRE IMMOBILIER
Contacter gratuitement à l'aide du formulaire ci-dessous.