ANOVA IMMOBILIER vous propose à prix promoteur Le programme Passage de l'Ill 20 rue des veaux 67000 STRASBOURG
Livraison prévue octobre 2024 Fiscalité : Malraux Destination : Accession ou investissement Nature du programme : Réduction d'impôts de 30% du montant des travaux
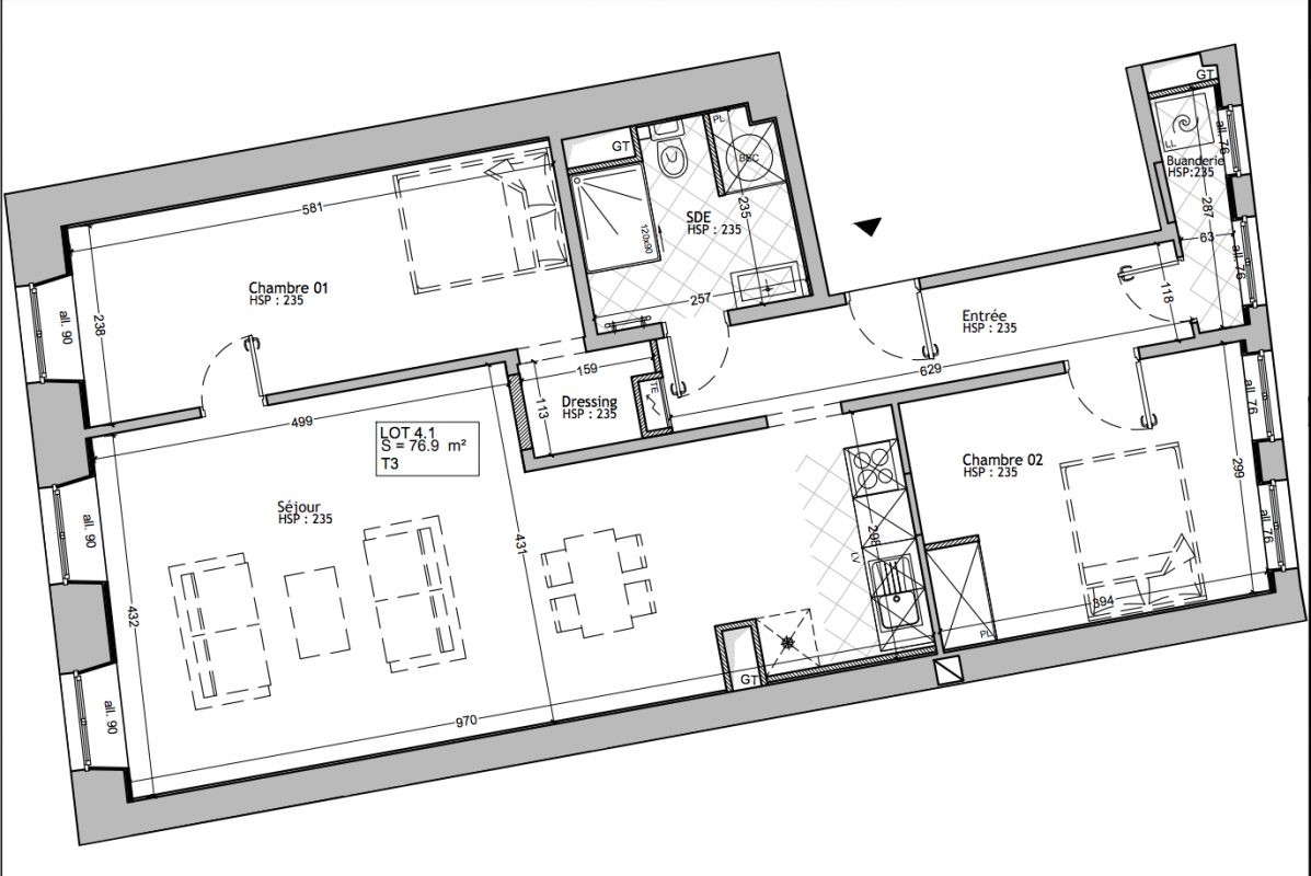
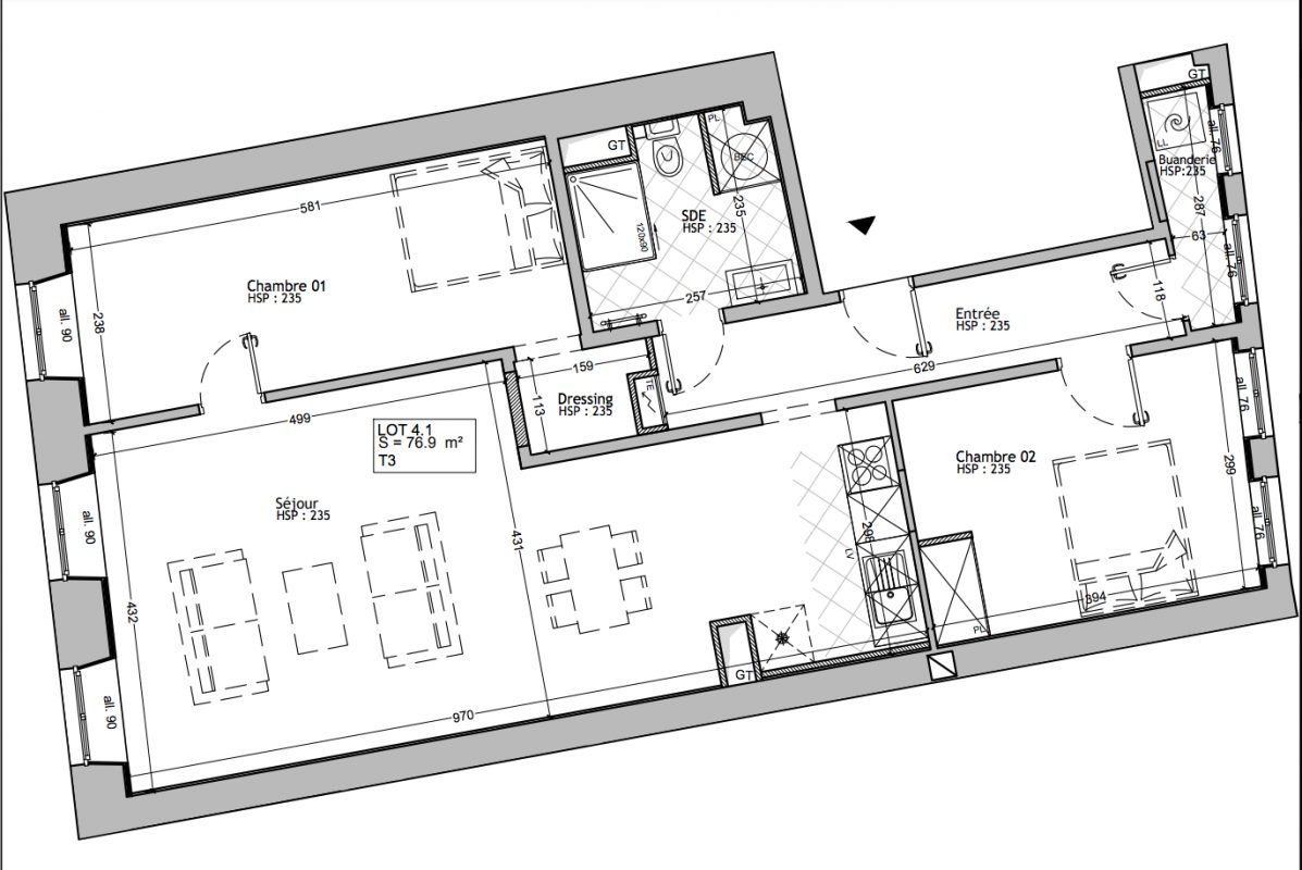
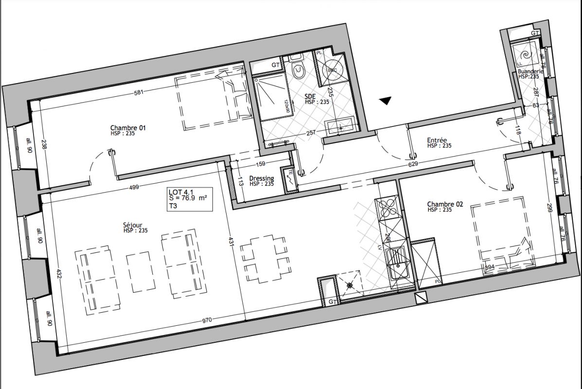
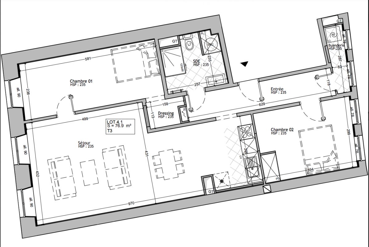
T2 de 50m2 avec entrée, séjour / cuisine de 26m2, une chambre et une salle de bain.
Situation : Strasbourg, capitale européenne, jouit d'une localisation stratégique au centre de l'Europe. À deux pas du centre historique et à proximité de la somptueuse cathédrale, le Passage de l'Ill jouit d'une situation privilégiée. Le projet de réhabilitation, éligible au dispositif fiscal Malraux, permettra l'aménagement de 24 appartements allant du studio au 3 pièces. Le projet de restauration porte sur 24 logements, allant du T1 au T3.
Le Passage de l'Ill, lieu privilégié à deux pas du coeur historique de Strasbourg,offre toutes ses richesses patrimoniales, en majorité conservées : porche monumental, menuiseries extérieures en bois, parquets, cheminées... Les appartements, desservis par une jolie cour intérieure pavée, présentent des volumes généreux faisant la part belle à la lumière, offrant aux futurs habitants un cadre de vie idéal.
Certains logements bénéficieront d'un espace extérieur privatif. À deux pas du centre historique et à proximité de la somptueuse cathédrale, le Passage de l'Ill jouit d'une situation privilégiée.
Proximité: Strasbourg centre, commerces
Pour plus de renseignements, Pour obtenir les plans et les lots disponibles, Contactez nous. ANOVA IMMOBILIER 07 688 50 100
Honoraires à la charge du vendeur. Dans une copropriété de 24 lots. Aucune procédure n'est en cours. DPE vierge. Les informations sur les risques auxquels ce bien est exposé sont disponibles sur le site Géorisques : georisques.gouv.fr.
Carte pro. CPI67012018000023425
50 m²
10 670 €
26 m²
2
3 sur 4
01/10/2024
2024
Oui (24 lots)
Contact Anova
Contacter gratuitement à l'aide du formulaire ci-dessous.