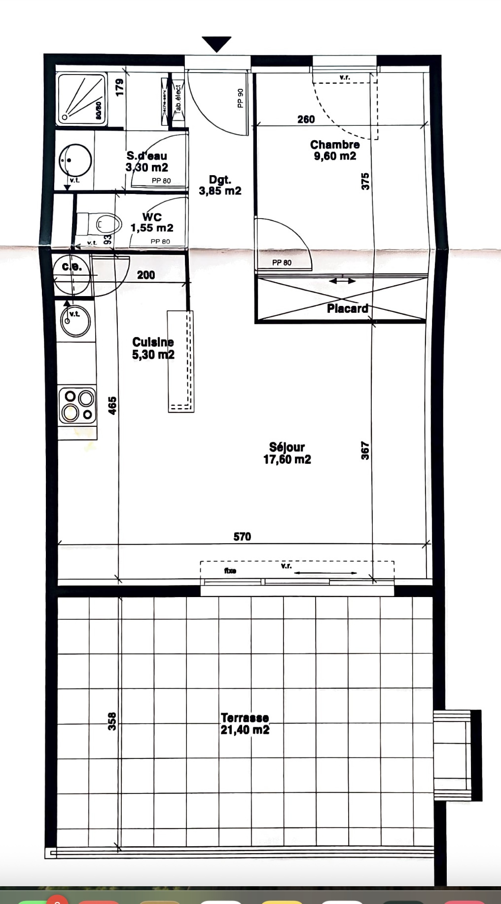
Charmant T2 rénové proche Saint-Éloi, Montpellier Idéalement situé à deux pas du CHU Saint-Éloi , de la *Faculté Paul Valéry et du tramway ligne 1 , cet appartement offre un emplacement recherché et pratique, à proximité immédiate de toutes commodités. Dans une résidence sécurisée et calme , L'Atelier de l'Immo vous propose ce beau T2 traversant de 40 m2 , entièrement rénové avec goût. Ses atouts : * Deux belles pièces lumineuses, idéales pour un usage en colocation ou pour un couple* Cuisine indépendante (possibilité d'ouverture sur la pièce de vie)* Appartement traversant offrant une belle luminosité* Une **place de parking privative** vient compléter ce bien Pour plus d'informations et organiser une visite, contactez Stéphanie & Lionel au 06 87 61 43 08 Mrix 147000 FAI Me contacter Stéphanie & Lionel au 06 87 61 43 08
40 m²
3 675 €
20 m²
2
1
1976
Sud
1
1
Oui (2 lots)
Consommations énergétiques
Logement économe
268
Logement énergivore (kWhEP/m2/an)
Émissions de gaz à effet de serre
Faible émission de GES
8
Forte émission de GES(kgeqCO2/m2/an)
Contact RESEAU EXPERTIMO JACOU
Contacter gratuitement à l'aide du formulaire ci-dessous.