Nouvelle résidence de standing en front de Mer, à 400m du centre ville/port, 10 min en voiture de l'embarcadère BREHAT/Pointe de l'ARCOUEST.
Normes RE2020. Ascenseur, Frais de notaire réduits, Livraison fin 2026. Carrelage au sol Villeroy & Boch, Parquet stratifié dans les chambres, Grand bac à douche extraplat avec faïence toute hauteur Villeroy & Boch, volets roulants électriques toutes fenêtres, chauffage électrique, résidence sécurisée.
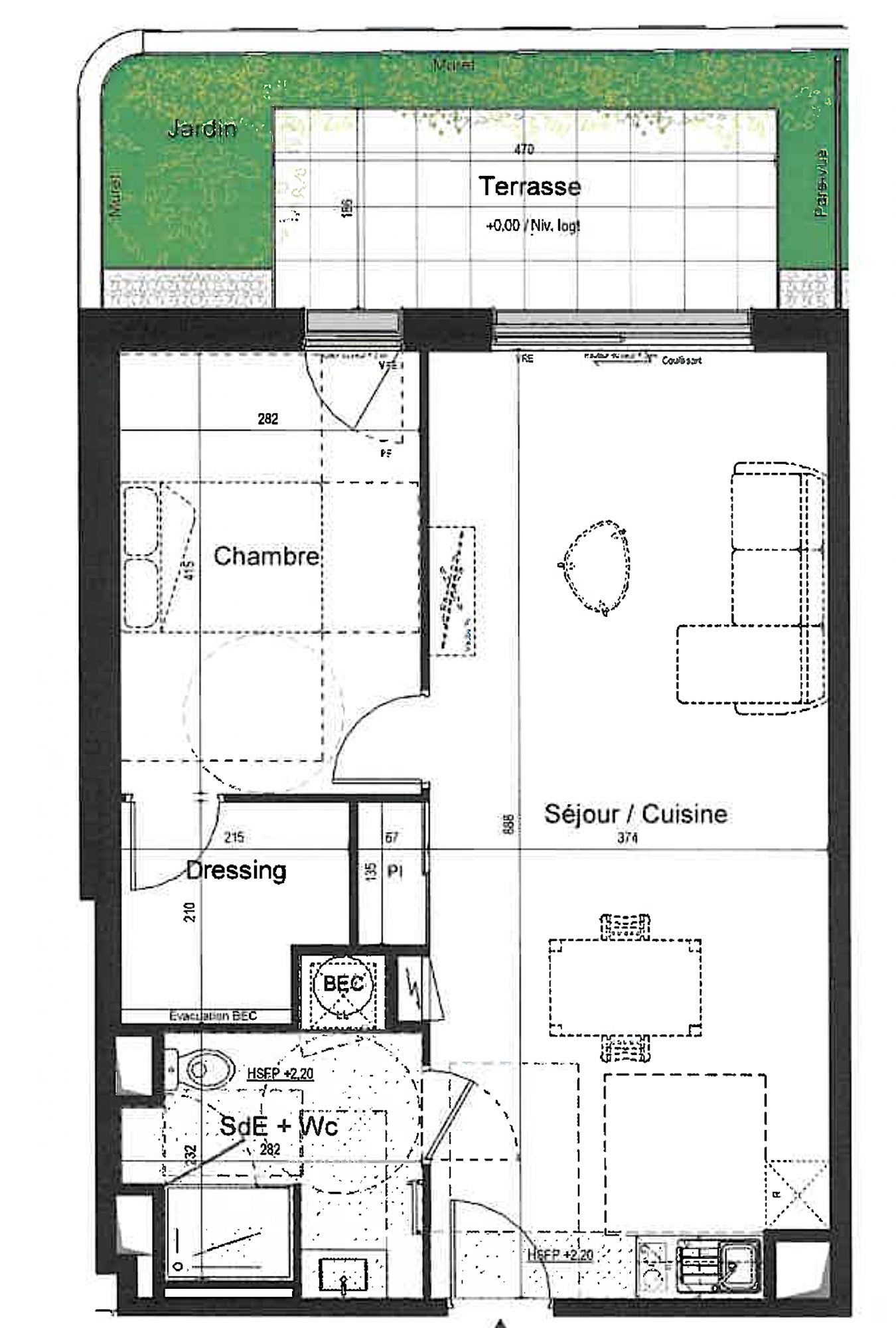
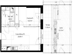
T2 en rez de chaussée surélevé. Vue Mer. Séjour de 23,48m2 s'ouvrant sur une terrasse de 12m2 et jardin de 22m2. Une chambre vue mer de 12m2. Salle d'eau douche à l'italienne, meuble vasque sèche serviette et wc, placards, un parking.
Nous Consulter
Honoraires à la charge du vendeur. Non soumis au DPE. Les informations sur les risques auxquels ce bien est exposé sont disponibles sur le site Géorisques : georisques.gouv.fr.
Votre conseiller MON BIEN A LA MER : Gérant - .fr MON BIEN A LA MER Carte T CPI 2201 2018 000 025 040 RCP ACM IARD B1 7025278
41.28 m²
6 076 €
23 m²
2
1
1
1
1 sur 2
Oui
1
1
Oui
Contact mon bien à la mer
Contacter gratuitement à l'aide du formulaire ci-dessous.