En exclusivité ! Encore un nouveau bien à vendre chez Novéo Immo !
Nous avons plus de 3000 biens en vente en Rhône-Alpes (neufs et anciens). Gagnez du temps, et ne passez pas à côté d'une belle opportunité ! Prenons rdv pour faire avancer votre projet d'acquisition.
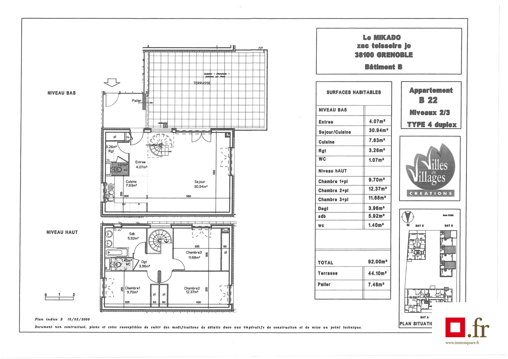
GRENOBLE ? Appartement - 3P - 68.81 m² - 230?000 €.
Située au c?ur du quartier Flaubert, cette résidence bénéficie d'un emplacement privilégié dans un projet d'écoquartier mixte où la nature et l'humain cohabitent en totale harmonie. À deux pas des lieux incontournables de Grenoble (2,5 km du centre), dans un quartier en pleine transformation avec des espaces publics novateurs.
Découvrez cet appartement de 3 pièces et de 68.81 m² carrez exposé Sud.
Il se compose de 2 belles chambres, d'un grand séjour-cuisine de plus de 38.41 m² et d'une salle de bain entièrement équipée (meuble vasque, baignoire, sèche serviette) ainsi que d'un WC séparé (suspendu).
Un beau balcon de 17.45 m² avec pergola vient sublimer ce bien.
Ce bien dispose de belles prestations puisqu'il est équipé de : chauffage individuel, volets roulants et brise-soleil électriques, ascenseur, etc?
Ce bien est en cours de construction, et ne nécessitera donc aucuns travaux à réaliser !
LA RESIDENCE/LA COPROPRIETE Résidence BBC RE 2020. Isolation phonique et thermique selon la dernière réglementation en vigueur. Le bien est sous garantie décennale (10 ans) et biennale (2 ans) pour les éléments d'équipement. Nous contacter pour la livraison.
DPE : en cours de réalisation par le promoteur. Bien en copropriété, Nb de lots : 40
La copropriété est en cours de création, elle n'a donc pas de procédure ni de litige en cours.
Charges annuelles courantes en cours d'estimation par le syndic provisoire.
PRIX ? 230 000 € TVA réduite (sous conditions)
Il n'y a PAS DE FRAIS D'AGENCE sur ce bien ! Et vous bénéficiez des Frais de notaire réduits (2.5% au lieu de 8%).
Possibilité de parking et cave . Bien éligible au Prêt à Taux zéro. D'autres lots sont disponibles dans cette résidence. Nous contacter pour plus de renseignements.
Nous avons plus de 3000 biens en vente en Rhône-Alpes (neufs et anciens). Gagnez du temps, et ne passez pas à côté d'une belle opportunité ! Prenons rdv pour faire avancer votre projet d'acquisition.
+ d'informations sur RDV auprès de M. Julien BOUCHARD-ANZALONE (E.I.) au O613 14O3 84
Pour mieux vous servir, toute visite est obligatoirement précédée d'un rdv pour une éventuelle visite virtuelle. Aucun document n'est envoyé par mail. Merci de votre compréhension.
Référence annonce : INNL25-JUBO-06
INFORMATIONS LÉGALES :
Le barème des honoraires agence, et les mentions légales complètes sont disponibles sur notre site internet dans la rubrique /nos honoraires/.
Novéo Immo Lyon (SAS au capital de 10 000 €). Annonce relative au mandat de vente N°50. Transactions immobilières sans perception de fonds - SIRET : 910 642 263 00016 RCS de Strasbourg APE 7022Z - CPI N°6701 2022 000 000 016 Délivrée par la CCI d'Alsace Eurométropole
Résidence en construction, visuels d'illustration, libre de droits.
68 m²
3 382 €
3
2
1
1
Consommations énergétiques
Logement économe
51
Logement énergivore (kWhEP/m2/an)
Émissions de gaz à effet de serre
Faible émission de GES
6
Forte émission de GES(kgeqCO2/m2/an)
Contact Gabriella DESSEZ
Contacter gratuitement à l'aide du formulaire ci-dessous.