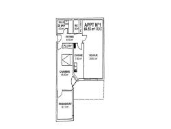
MERIGNAC, 795 Euro + charges 63 Euro Appartement T2 bis en bon etat de 68 m2. Avec Terrasse. Comprenant sejour, cuisine Amenagee, une chambre, salle d'eau, WC. Proche transports et commerces. Caution : 1 mois HC. Nous contacter LADP 05.56.01.80.01 fd 210 Euro - mis a jour le 15/11/25 - loyer hors charges
68 m²
3
1
Contact DIRECTE LOCATION
Contacter gratuitement à l'aide du formulaire ci-dessous.