T3 60m2 à Orly (200m du tram, terrasse et parking)
Orly 94310
0
À 200 mètres du tramway : un appartement lumineux, économe et parfaitement situé !
Découvrez ce bel appartement de 60 m², idéalement situé à seulement 2 minutes à pied de l'arrêt de tramway Gaston Viens, au c?ur d'une résidence récente (2015).
Acheter dans une résidence récente, c'est bénéficier de normes modernes, d'une excellente isolation et d'un confort de vie durable sans prévoir de gros travaux dans la copropriété.
Son DPE en B et son chauffage par géothermie vous garantissent un logement économique, avec des charges de chauffage très faibles, un véritable atout dans le secteur.
Profitez également d'une terrasse de 7 m² orientée Est, parfaite pour profiter de la luminosité matinale, ainsi que d'une place de parking en sous-sol.
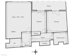
Agencement du bien :
Entrée
Toilettes séparées avec possibilité d'installer un lave-linge
Cuisine ouverte sur séjour (23 m²), moderne et conviviale
Couloir avec rangements intégrés
Deux chambres, toutes deux donnant directement sur la terrasse
Salle de bain
Un emplacement privilégié :
Situé au pied des commerces, des équipements culturels et des transports, ce bien offre un quotidien où tout se fait à pied : courses, écoles, loisirs, tramway? un vrai confort de vie.
Informations financières :
Charges trimestrielles : 559 €, incluant les charges générales + eau chaude + chauffage
Taxe foncière : 1 531 € / an
Ce bien vous plaît ? Contactez directement votre conseiller. Lauvergeat Hugo, agent commercial immatriculé au RSAC de Créteil sous le numéro 897 414 033. Référence annonce : DOM25956. Date de réalisation du diagnostic : 29/11/2025. Les honoraires sont à la charge du vendeur.
60 m²
3 917 €
3
2
1
1
1 sur 4
2015
Est
Nord
Oui
Consommations énergétiques
Logement économe
77
Logement énergivore (kWhEP/m2/an)
Émissions de gaz à effet de serre
Faible émission de GES
3
Forte émission de GES(kgeqCO2/m2/an)
Contact Liberkeys - Département des Ventes
Contacter gratuitement à l'aide du formulaire ci-dessous.