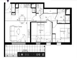
Hélène PARISOT , conseillère en immobilier Noovimo, vous propose cet appartement T3 de 64.46m2 sur Challans exposé S/O. Il comprend une entrée avec placard, une pièce de vie de 26.64m2 avec un espace cuisine, une salle d'eau, une chambres avec un accés terrasse, un chambre avec placard et un wc. Une place de parkings intérieur. De votre futur appartement, vous pourrez profiter d'un cadre de vie en centre ville de Challans, donnant sur un coeur d'îlot végétalisé et dégagé Toutes commodités à proximité : les halles, les commerces, l hôpital et la gare La résidence sera livrée au 3eme trimestre 2023. Programme RT 2012 Prix promoteur 260 000 EUR. contactez moi au 06 89 93 96 03 ou par mail hparisot@noovimo.fr pour toutes demandes de renseignements. Votre agent indépendant NOOVIMO inscrit au RSAC de le roche sur yon no 841 556 533 - Annonce rédigée et publiée par un Agent Mandataire - Annonce rédigée et publiée par un Agent Mandataire -
64.46 m²
4 034 €
26 m²
3
2
1
1
2 sur 3
01/10/2023
2023
Sud
Ouest
Oui
1
1
Oui
Contact PARISOT
Contacter gratuitement à l'aide du formulaire ci-dessous.