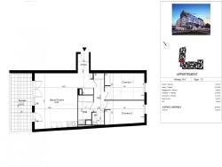
T3 68 m² troisième étage avec terrasse de 14,50 m², Béziers (Avenue du Président Wilson)
Béziers 34500
0
Situé au troisième étage, cet appartement de près de 68 m² dispose d'une terrasse de plus de 14 m², à proximité du Polygone et du plateau des Poètes.
Séjour traversant avec cuisine ouverte, deux chambres, salle de bain indépendante et WC séparés.
Résidence récente et sécurisée, avec stationnement privatif en sous-sol, offrant confort et tranquillité en centre-ville.
Commodités, commerces, transports et espaces verts à proximité immédiate.
Prix : 180 141, 25 euros (honoraires à la charge du vendeur) DPE en cours.
Pour visiter et vous accompagner dans votre projet, contactez Michel HORNECKER, au 0699405021 ou, par courriel à m.hornecker@proprietes-privees.com.
Selon l'article L.561.5 du Code Monétaire et Financier, pour l'organisation de la visite, la présentation d'une pièce d'identité vous sera demandée.
Cette présente annonce a été rédigée sous la responsabilité éditoriale de Michel HORNECKER agissant sous le statut d'agent commercial immatriculé au RSAC BEZIERS 493044283 auprès de SAS PROPRIETES PRIVEES, au capital de 44 920 euros, ZAC LE CHÊNE FERRÉ - 44 ALLÉE DES CINQ CONTINENTS 44120 VERTOU; SIRET 487 624 777 00040, RCS Nantes. Carte Professionnelle Transactions sur immeubles et fonds de commerce (T) et Gestion immobilière (G) n°CPI 4401 2016 000 010 388 délivrée par la CCI Nantes - Saint Nazaire. Compte séquestre n°30932508467 BPA SAINT-SEBASTIEN-SUR-LOIRE (44230). Garantie GALIAN-SMABTP - 89 rue de la Boétie, 75008 Paris - n°28137 J pour 2 000 000 euros pour T et 120 000 euros pour G. Assurance responsabilité civile professionnelle par GALIAN-SMABTP n° de police 28137.J
Mandat réf : 430084 Le professionnel garantit et sécurise votre projet immobilier.
Copropriété de 119 lots - dont 119 lots habitation. ().
Charges annuelles : 1 euros.
Michel HORNECKER (EI) Agent Commercial - Numéro RSAC : BEZIERS 493044283 - .
67 m²
2 689 €
31 m²
3
2
1
1
3 sur 5
Séparée
Ouest
Nord
Oui
Contact Michel HORNECKER
Contacter gratuitement à l'aide du formulaire ci-dessous.